三徳ビルの貸事務所・賃貸オフィス情報
三徳ビルの貸事務所・賃貸オフィス情報
三徳ビル
- エレベーター
- 個別空調
- 新耐震基準
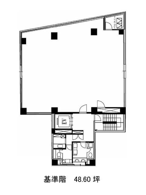
三徳ビルの空室フロアリスト
| 階数 | 面積 | 賃料+共益費 | 保証金 | 入居時期 | 更新料 | 償却費 | 礼金 | 検討 | 平面図 | 詳細 |
|---|---|---|---|---|---|---|---|---|---|---|
| 5 | 48.60坪 |
641,520円13,200円/坪
|
291万円
|
即 | 新1ケ月 | なし | 1ケ月 |
三徳ビルの物件情報
三徳ビル(品川区北品川)は北品川駅徒歩2分、新馬場駅徒歩6分、品川駅徒歩12分の賃貸オフィスです。
三徳ビルのアクセス
三徳ビルの募集終了区画
| 階数 | 面積 | 賃料+共益費 | 保証金 | 入居時期 | 更新料 | 償却費 | 礼金 | 平面図 | 詳細 |
|---|---|---|---|---|---|---|---|---|---|
| 1 | 30.25坪 | − | − | 募集終了 | − | − | − | ||
| 2 | 48.60坪 | − | − | 募集終了 | − | − | − | ||
| 3 | 48.60坪 | − | − | 募集終了 | − | − | − | ||
| 4 | 48.60坪 | − | − | 募集終了 | − | − | − | ||
| 6 | 48.60坪 | − | − | 募集終了 | − | − | − | ||
| 7 | 41.00坪 | − | − | 募集終了 | − | − | − |


