エー・ゼットキュウブビルの貸事務所・賃貸オフィス情報
エー・ゼットキュウブビルの貸事務所・賃貸オフィス情報
エー・ゼットキュウブビル
- エレベーター
- 個別空調
- 新耐震基準
エー・ゼットキュウブビルの空室フロアリスト
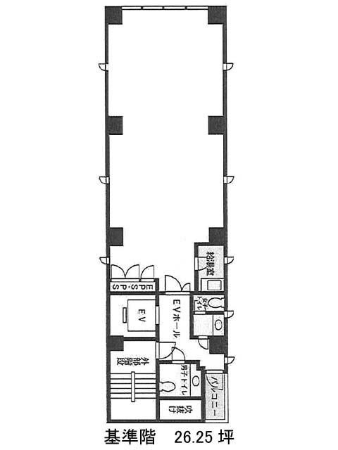
| 階数 | 面積 | 賃料+共益費 | 保証金 | 入居時期 | 更新料 | 償却費 | 礼金 | 検討 | 平面図 | 詳細 |
|---|---|---|---|---|---|---|---|---|---|---|
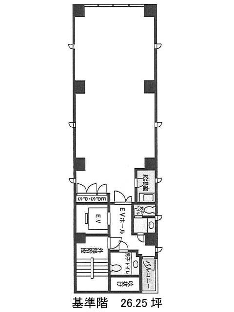
| 7 | 26.25坪 |
484,000円18,438円/坪
|
264万円
|
相談 | 新1ケ月 | 1ケ月 | なし |
エー・ゼットキュウブビルの物件情報
エー・ゼットキュウブビル(文京区後楽)は水道橋駅徒歩2分、飯田橋駅徒歩6分、後楽園駅徒歩9分の賃貸オフィスです。
エー・ゼットキュウブビルのアクセス
エー・ゼットキュウブビルの条件に近い物件
エー・ゼットキュウブビルの募集終了区画
| 階数 | 面積 | 賃料+共益費 | 保証金 | 入居時期 | 更新料 | 償却費 | 礼金 | 平面図 | 詳細 |
|---|---|---|---|---|---|---|---|---|---|
| 1 | 19.75坪 | − | − | 募集終了 | − | − | − | ||
| 2 | 26.25坪 | − | − | 募集終了 | − | − | − | ||
| 3 | 26.25坪 | − | − | 募集終了 | − | − | − | ||
| 4 | 26.25坪 | − | − | 募集終了 | − | − | − | ||
| 5 | 26.25坪 | − | − | 募集終了 | − | − | − | ||
| 6 | 26.25坪 | − | − | 募集終了 | − | − | − |


