ベルスクエア小石川の貸事務所・賃貸オフィス情報
ベルスクエア小石川の貸事務所・賃貸オフィス情報
ベルスクエア小石川
- エレベーター
- 新耐震基準
ベルスクエア小石川の空室フロアリスト
| 階数 | 面積 | 賃料+共益費 | 保証金 | 入居時期 | 更新料 | 償却費 | 礼金 | 検討 | 平面図 | 詳細 |
|---|---|---|---|---|---|---|---|---|---|---|
| 3 | 33.69坪 |
495,000円14,693円/坪
|
234万円
|
相談 | 新1.5ケ月 | 2ケ月 | なし |
ベルスクエア小石川の物件情報
ベルスクエア小石川(文京区小石川)は茗荷谷駅徒歩8分、江戸川橋駅徒歩15分の賃貸オフィスです。
ベルスクエア小石川のアクセス
ベルスクエア小石川の条件に近い物件
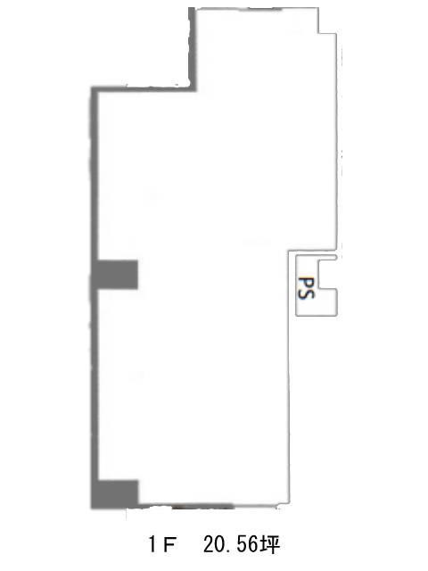
ベルスクエア小石川の募集終了区画
| 階数 | 面積 | 賃料+共益費 | 保証金 | 入居時期 | 更新料 | 償却費 | 礼金 | 平面図 | 詳細 |
|---|---|---|---|---|---|---|---|---|---|
| 1 | 20.56坪 | − | − | 募集終了 | − | − | − | ||
| 2 | 20.24坪 | − | − | 募集終了 | − | − | − | ||
| 2 | 17.24坪 | − | − | 募集終了 | − | − | − | ||
| 5 | 36.29坪 | − | − | 募集終了 | − | − | − |


