亀戸メディカルビルの貸事務所・賃貸オフィス情報
亀戸メディカルビルの貸事務所・賃貸オフィス情報
亀戸メディカルビル
- エレベーター
- 個別空調
- 新耐震基準
亀戸メディカルビルの空室フロアリスト
| 階数 | 面積 | 賃料+共益費 | 保証金 | 入居時期 | 更新料 | 償却費 | 礼金 | 検討 | 平面図 | 詳細 |
|---|---|---|---|---|---|---|---|---|---|---|
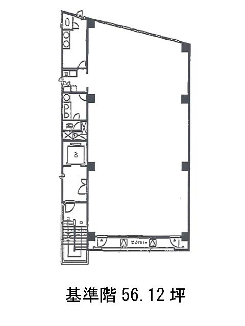
| 6 | 56.12坪 |
740,784円13,200円/坪
|
505万円
|
即 | 新1ケ月 | 10% | なし |
亀戸メディカルビルの物件情報
亀戸メディカルビル(江東区亀戸)は亀戸駅徒歩6分、亀戸水神駅徒歩11分、東あずま駅徒歩15分の賃貸オフィスです。
亀戸メディカルビルのアクセス
亀戸メディカルビルの条件に近い物件
亀戸メディカルビルの募集終了区画
| 階数 | 面積 | 賃料+共益費 | 保証金 | 入居時期 | 更新料 | 償却費 | 礼金 | 平面図 | 詳細 |
|---|---|---|---|---|---|---|---|---|---|
| 1 | 44.35坪 | − | − | 募集終了 | − | − | − | ||
| 7 | 56.12坪 | − | − | 募集終了 | − | − | − | ||
| 8 | 56.12坪 | − | − | 募集終了 | − | − | − |


