鯨岡第1ビルの貸事務所・賃貸オフィス情報
鯨岡第1ビルの貸事務所・賃貸オフィス情報
鯨岡第1ビル
- エレベーター
- 個別空調
- 駐車場
- 旧耐震基準
鯨岡第1ビルの空室フロアリスト
| 階数 | 面積 | 賃料+共益費 | 保証金 | 入居時期 | 更新料 | 償却費 | 礼金 | 検討 | 平面図 | 詳細 |
|---|---|---|---|---|---|---|---|---|---|---|
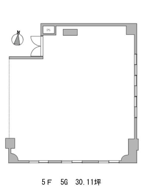
| 5 | 30.11坪 |
363,000円12,057円/坪
|
168万円
|
即 | 新1ケ月 | なし | なし |
鯨岡第1ビルの物件情報
鯨岡第1ビル(江東区亀戸)は亀戸駅徒歩9分、西大島駅徒歩12分、錦糸町駅徒歩13分の賃貸オフィスです。
鯨岡第1ビルのアクセス
鯨岡第1ビルの条件に近い物件
鯨岡第1ビルの募集終了区画
| 階数 | 面積 | 賃料+共益費 | 保証金 | 入居時期 | 更新料 | 償却費 | 礼金 | 平面図 | 詳細 |
|---|---|---|---|---|---|---|---|---|---|
| 2 | 262.23坪 | − | − | 募集終了 | − | − | − | ||
| 2 | 58.00坪 | − | − | 募集終了 | − | − | − | ||
| 2 | 27.40坪 | − | − | 募集終了 | − | − | − | ||
| 3 | 121.78坪 | − | − | 募集終了 | − | − | − | ||
| 3 | 208.70坪 | − | − | 募集終了 | − | − | − | ||
| 3 | 26.13坪 | − | − | 募集終了 | − | − | − | ||
| 3 | 48.45坪 | − | − | 募集終了 | − | − | − | ||
| 3 | 22.32坪 | − | − | 募集終了 | − | − | − | ||
| 3 | 33.78坪 | − | − | 募集終了 | − | − | − | ||
| 3 | 54.75坪 | − | − | 募集終了 | − | − | − | ||
| 3 | 20.97坪 | − | − | 募集終了 | − | − | − | ||
| 3 | 36.75坪 | − | − | 募集終了 | − | − | − | ||
| 3 | 25.11坪 | − | − | 募集終了 | − | − | − | ||
| 3 | 28.44坪 | − | − | 募集終了 | − | − | − | ||
| 3 | 99.46坪 | − | − | 募集終了 | − | − | − | ||
| 3 | 53.54坪 | − | − | 募集終了 | − | − | − | ||
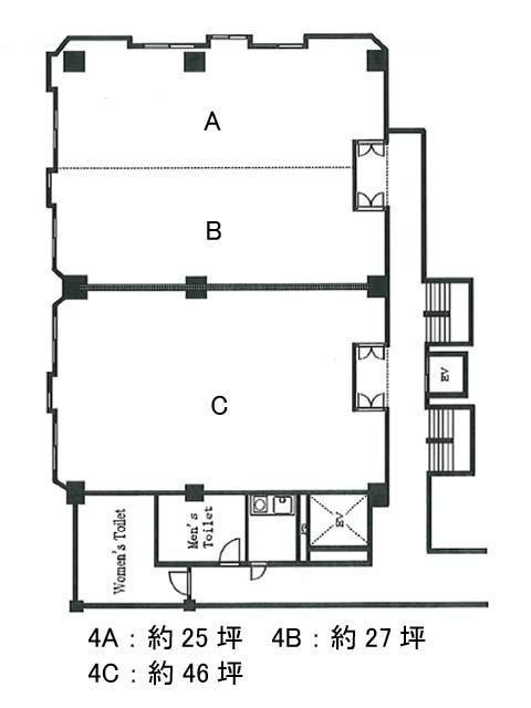
| 4 | 21.46坪 | − | − | 募集終了 | − | − | − | ||
| 4 | 103.00坪 | − | − | 募集終了 | − | − | − | ||
| 4 | 45.85坪 | − | − | 募集終了 | − | − | − | ||
| 4 | 32.17坪 | − | − | 募集終了 | − | − | − | ||
| 4 | 25.11坪 | − | − | 募集終了 | − | − | − | ||
| 4 | 27.83坪 | − | − | 募集終了 | − | − | − | ||
| 4 | 46.89坪 | − | − | 募集終了 | − | − | − | ||
| 5 | 103.00坪 | − | − | 募集終了 | − | − | − | ||
| 5 | 99.82坪 | − | − | 募集終了 | − | − | − |


