新東第一ビルの貸事務所・賃貸オフィス情報
新東第一ビルの貸事務所・賃貸オフィス情報
新東第一ビル
- エレベーター
- 個別空調
- 旧耐震基準
新東第一ビルの空室フロアリスト
| 階数 | 面積 | 賃料+共益費 | 保証金 | 入居時期 | 更新料 | 償却費 | 礼金 | 検討 | 平面図 | 詳細 |
|---|---|---|---|---|---|---|---|---|---|---|
| 3 | 36.47坪 |
1,123,276円30,801円/坪
|
532万円
|
2026年6月上旬 | 新1ケ月 | 10% | なし |
新東第一ビルの物件情報
新東第一ビル(豊島区西池袋)は池袋駅徒歩1分、要町駅徒歩13分、東池袋駅徒歩14分の賃貸オフィスです。
新東第一ビルのアクセス
新東第一ビルの条件に近い物件
新東第一ビルの募集終了区画
| 階数 | 面積 | 賃料+共益費 | 保証金 | 入居時期 | 更新料 | 償却費 | 礼金 | 平面図 | 詳細 |
|---|---|---|---|---|---|---|---|---|---|
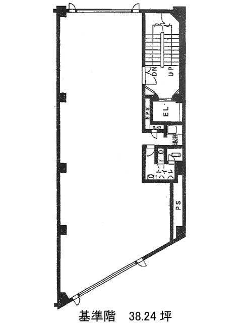
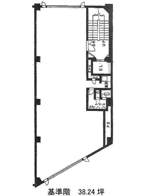
| 5 | 38.24坪 | − | − | 募集終了 | − | − | − | ||
| 6 | 38.24坪 | − | − | 募集終了 | − | − | − | ||
| 8 | 38.24坪 | − | − | 募集終了 | − | − | − |


