池袋ツルミビルの貸事務所・賃貸オフィス情報
池袋ツルミビルの貸事務所・賃貸オフィス情報
池袋ツルミビル
- エレベーター
- 個別空調
- 新耐震基準
池袋ツルミビルの空室フロアリスト
| 階数 | 面積 | 賃料+共益費 | 保証金 | 入居時期 | 更新料 | 償却費 | 礼金 | 検討 | 平面図 | 詳細 |
|---|---|---|---|---|---|---|---|---|---|---|
| 4 | 58.96坪 |
797,728円13,530円/坪
|
404万円
|
2026年7月上旬 | 新1ケ月 | 2ケ月 | なし |
池袋ツルミビルの物件情報
池袋ツルミビル(豊島区西池袋)は池袋駅徒歩4分、目白駅徒歩11分、東池袋駅徒歩14分の賃貸オフィスです。
池袋ツルミビルのアクセス
池袋ツルミビルの条件に近い物件
池袋ツルミビルの募集終了区画
| 階数 | 面積 | 賃料+共益費 | 保証金 | 入居時期 | 更新料 | 償却費 | 礼金 | 平面図 | 詳細 |
|---|---|---|---|---|---|---|---|---|---|
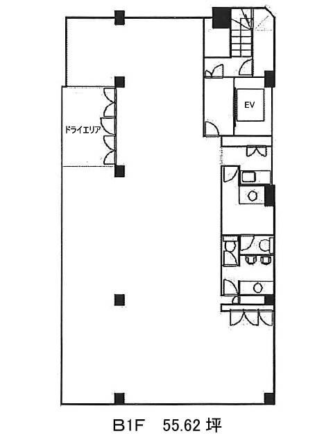
| 地下1 | 55.62坪 | − | − | 募集終了 | − | − | − | ||
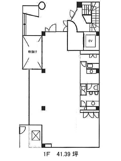
| 1 | 41.39坪 | − | − | 募集終了 | − | − | − | ||
| 2 | 57.58坪 | − | − | 募集終了 | − | − | − | ||
| 5 | 55.75坪 | − | − | 募集終了 | − | − | − |


