西池袋TSビルの貸事務所・賃貸オフィス情報
西池袋TSビルの貸事務所・賃貸オフィス情報
西池袋TSビル
- エレベーター
- 個別空調
- 駐車場
- 新耐震基準
西池袋TSビルの空室フロアリスト
| 階数 | 面積 | 賃料+共益費 | 保証金 | 入居時期 | 更新料 | 償却費 | 礼金 | 検討 | 平面図 | 詳細 |
|---|---|---|---|---|---|---|---|---|---|---|
| 2 | 109.96坪 |
応相談応相談
|
応相談
|
2026年5月上旬 | なし | なし | なし |
西池袋TSビルの物件情報
西池袋TSビル(豊島区西池袋)は池袋駅徒歩3分、目白駅徒歩12分、要町駅徒歩13分の賃貸オフィスです。
西池袋TSビルのアクセス
西池袋TSビルの募集終了区画
| 階数 | 面積 | 賃料+共益費 | 保証金 | 入居時期 | 更新料 | 償却費 | 礼金 | 平面図 | 詳細 |
|---|---|---|---|---|---|---|---|---|---|
| 地下1 | 73.57坪 | − | − | 募集終了 | − | − | − | ||
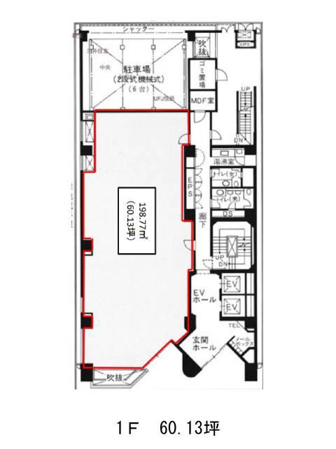
| 1 | 60.13坪 | − | − | 募集終了 | − | − | − | ||
| 4 | 89.85坪 | − | − | 募集終了 | − | − | − | ||
| 5 | 70.00坪 | − | − | 募集終了 | − | − | − | ||
| 6 | 60.99坪 | − | − | 募集終了 | − | − | − | ||
| 7 | 61.07坪 | − | − | 募集終了 | − | − | − | ||
| 8 | 32.49坪 | − | − | 募集終了 | − | − | − | ||
| 8 | 61.07坪 | − | − | 募集終了 | − | − | − | ||
| 9 | 61.16坪 | − | − | 募集終了 | − | − | − | ||
| 10 | 60.28坪 | − | − | 募集終了 | − | − | − |


