キウレイコンビルの貸事務所・賃貸オフィス情報
キウレイコンビルの貸事務所・賃貸オフィス情報
キウレイコンビル
- エレベーター
- 個別空調
- 駐車場
- 新耐震基準
キウレイコンビルの空室フロアリスト
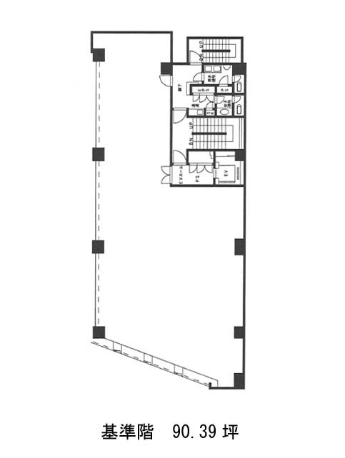
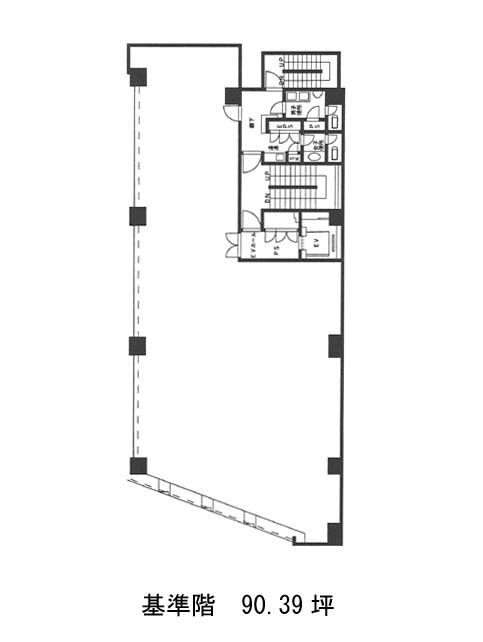
| 階数 | 面積 | 賃料+共益費 | 保証金 | 入居時期 | 更新料 | 償却費 | 礼金 | 検討 | 平面図 | 詳細 |
|---|---|---|---|---|---|---|---|---|---|---|
| 2 | 90.40坪 |
1,640,760円18,150円/坪
|
1220万円
|
2026年8月上旬 | 新1ケ月 | 20% | 1ケ月 |
キウレイコンビルの物件情報
キウレイコンビル(豊島区池袋)は池袋駅徒歩4分、東池袋駅徒歩15分の賃貸オフィスです。
キウレイコンビルのアクセス
キウレイコンビルの条件に近い物件
キウレイコンビルの募集終了区画
| 階数 | 面積 | 賃料+共益費 | 保証金 | 入居時期 | 更新料 | 償却費 | 礼金 | 平面図 | 詳細 |
|---|---|---|---|---|---|---|---|---|---|
| 3 | 90.40坪 | − | − | 募集終了 | − | − | − | ||
| 4 | 90.39坪 | − | − | 募集終了 | − | − | − | ||
| 5 | 90.40坪 | − | − | 募集終了 | − | − | − | ||
| 6 | 90.39坪 | − | − | 募集終了 | − | − | − | ||
| 7 | 90.39坪 | − | − | 募集終了 | − | − | − |


