アルコイルスKビルの貸事務所・賃貸オフィス情報
アルコイルスKビルの貸事務所・賃貸オフィス情報
アルコイルスKビル
- エレベーター
- 個別空調
- 新耐震基準
アルコイルスKビルの空室フロアリスト
| 階数 | 面積 | 賃料+共益費 | 保証金 | 入居時期 | 更新料 | 償却費 | 礼金 | 検討 | 平面図 | 詳細 |
|---|---|---|---|---|---|---|---|---|---|---|
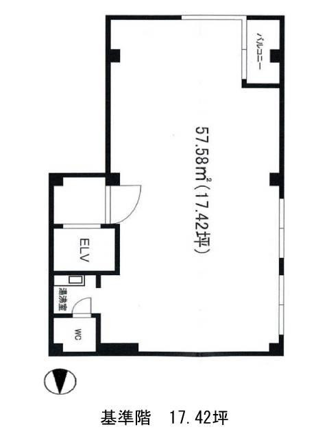
| 4 | 17.42坪 |
253,000円14,525円/坪
|
88万円
|
即 | 新1ケ月 | なし | 1ケ月 |
アルコイルスKビルの物件情報
アルコイルスKビル(豊島区池袋)は池袋駅徒歩3分、要町駅徒歩10分の賃貸オフィスです。
アルコイルスKビルのアクセス
アルコイルスKビルの募集終了区画
| 階数 | 面積 | 賃料+共益費 | 保証金 | 入居時期 | 更新料 | 償却費 | 礼金 | 平面図 | 詳細 |
|---|---|---|---|---|---|---|---|---|---|
| 2 | 17.42坪 | − | − | 募集終了 | − | − | − | ||
| 5 | 17.42坪 | − | − | 募集終了 | − | − | − |


