小林ビルの貸事務所・賃貸オフィス情報
小林ビルの貸事務所・賃貸オフィス情報
小林ビル
- エレベーター
- 新耐震基準
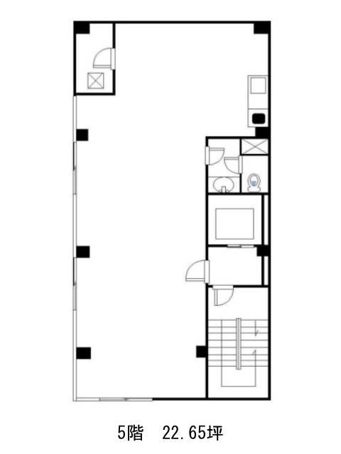
小林ビルの空室フロアリスト
| 階数 | 面積 | 賃料+共益費 | 保証金 | 入居時期 | 更新料 | 償却費 | 礼金 | 検討 | 平面図 | 詳細 |
|---|---|---|---|---|---|---|---|---|---|---|
| 5 | 22.65坪 |
352,000円15,541円/坪
|
200万円
|
即 | 新1ケ月 | 20% | 1ケ月 |
小林ビルの物件情報
小林ビル(豊島区池袋)は池袋駅徒歩4分、要町駅徒歩13分の賃貸オフィスです。
小林ビルのアクセス
小林ビルの募集終了区画
| 階数 | 面積 | 賃料+共益費 | 保証金 | 入居時期 | 更新料 | 償却費 | 礼金 | 平面図 | 詳細 |
|---|---|---|---|---|---|---|---|---|---|
| 4 | 22.65坪 | − | − | 募集終了 | − | − | − | ||
| 6 | 22.65坪 | − | − | 募集終了 | − | − | − |


