東京トラフィック錦糸町ビル南館の貸事務所・賃貸オフィス情報
東京トラフィック錦糸町ビル南館の貸事務所・賃貸オフィス情報
東京トラフィック錦糸町ビル南館
- エレベーター
- 個別空調
- 駐車場
- 新耐震基準
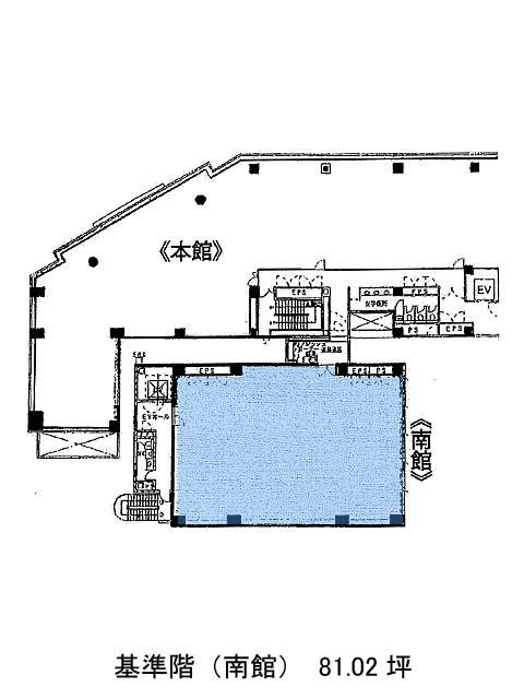
東京トラフィック錦糸町ビル南館の空室フロアリスト
| 階数 | 面積 | 賃料+共益費 | 保証金 | 入居時期 | 更新料 | 償却費 | 礼金 | 検討 | 平面図 | 詳細 |
|---|---|---|---|---|---|---|---|---|---|---|
| 5 | 81.02坪 |
応相談応相談
|
応相談
|
2026年7月上旬 | なし | なし | なし |
東京トラフィック錦糸町ビル南館の物件情報
東京トラフィック錦糸町ビル南館(墨田区江東橋)は錦糸町駅徒歩3分、住吉駅徒歩9分、亀戸駅徒歩14分の賃貸オフィスです。
東京トラフィック錦糸町ビル南館のアクセス
東京トラフィック錦糸町ビル南館の募集終了区画
| 階数 | 面積 | 賃料+共益費 | 保証金 | 入居時期 | 更新料 | 償却費 | 礼金 | 平面図 | 詳細 |
|---|---|---|---|---|---|---|---|---|---|
| 2 | 81.01坪 | − | − | 募集終了 | − | − | − | ||
| 3 | 81.01坪 | − | − | 募集終了 | − | − | − | ||
| 4 | 81.01坪 | − | − | 募集終了 | − | − | − | ||
| 6 | 81.02坪 | − | − | 募集終了 | − | − | − | ||
| 7 | 81.02坪 | − | − | 募集終了 | − | − | − | ||
| 8 | 81.01坪 | − | − | 募集終了 | − | − | − | ||
| 9 | 43.02坪 | − | − | 募集終了 | − | − | − |


