浅井第5ビルの貸事務所・賃貸オフィス情報
浅井第5ビルの貸事務所・賃貸オフィス情報
浅井第5ビル
- エレベーター
- 新耐震基準
浅井第5ビルの空室フロアリスト
| 階数 | 面積 | 賃料+共益費 | 保証金 | 入居時期 | 更新料 | 償却費 | 礼金 | 検討 | 平面図 | 詳細 |
|---|---|---|---|---|---|---|---|---|---|---|
| 8 | 16.60坪 |
247,500円14,910円/坪
|
43万円
|
即 | 新1ケ月 | 1ケ月 | 1ケ月 |
浅井第5ビルの物件情報
浅井第5ビル(江東区住吉)は住吉駅徒歩1分、錦糸町駅徒歩11分、菊川駅徒歩12分の賃貸オフィスです。
浅井第5ビルのアクセス
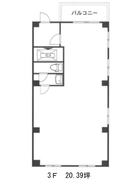
浅井第5ビルの募集終了区画
| 階数 | 面積 | 賃料+共益費 | 保証金 | 入居時期 | 更新料 | 償却費 | 礼金 | 平面図 | 詳細 |
|---|---|---|---|---|---|---|---|---|---|
| 2 | 20.40坪 | − | − | 募集終了 | − | − | − | ||
| 3 | 20.40坪 | − | − | 募集終了 | − | − | − | ||
| 3 | 20.39坪 | − | − | 募集終了 | − | − | − |


