現在、空室がございません。
名無しビルの貸事務所・賃貸オフィス情報
名無しビルの貸事務所・賃貸オフィス情報
名無しビル
- 新耐震基準
名無しビルの空室フロアリスト
現在、空室がございません。
名無しビルの物件情報
名無しビル(江東区扇橋)は住吉駅徒歩11分の賃貸オフィスです。
名無しビルのアクセス
名無しビルの募集終了区画
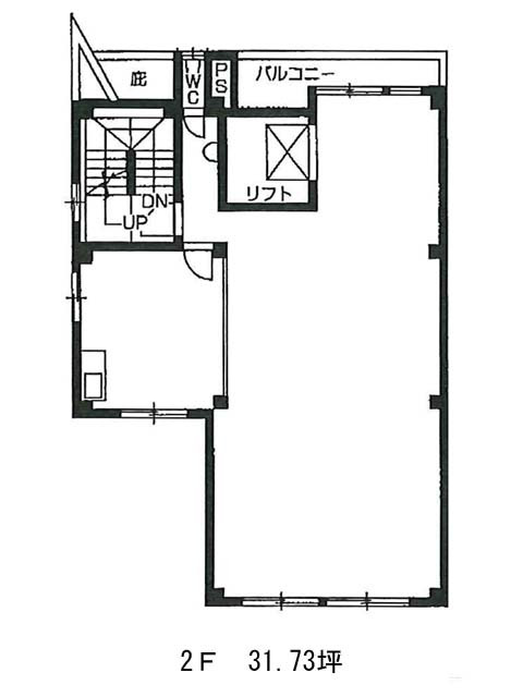
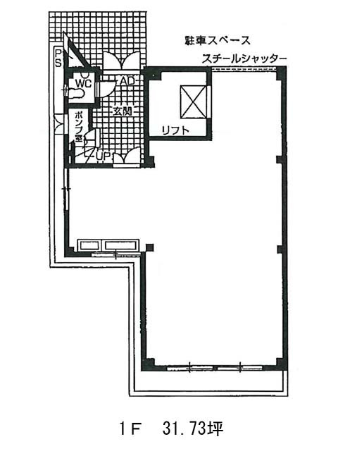
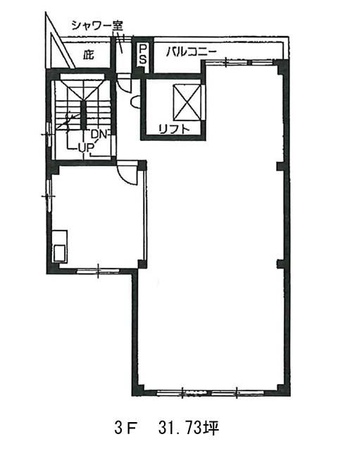
| 階数 | 面積 | 賃料+共益費 | 保証金 | 入居時期 | 更新料 | 償却費 | 礼金 | 平面図 | 詳細 |
|---|---|---|---|---|---|---|---|---|---|
| 1 | 31.73坪 | − | − | 募集終了 | − | − | − | ||
| 2 | 31.73坪 | − | − | 募集終了 | − | − | − | ||
| 3 | 31.73坪 | − | − | 募集終了 | − | − | − |


