高輪エンパイヤビル地下1階の貸事務所・賃貸オフィス情報
高輪エンパイヤビル地下1階の賃貸オフィス・貸事務所情報
高輪エンパイヤビルのフロア情報
募集階数
地下1階
面積
45.48坪
賃料+共益費
1,400,784円
30,800円/坪
保証金
1273万円
入居時期
2026年4月上旬
更新料
なし
償却費
なし
礼金
1ケ月
高輪エンパイヤビル
- エレベーター
- 個別空調
- 男女別トイレ
- 駐車場
- 新耐震基準
高輪エンパイヤビルのフロア情報
募集階数
地下1階
面積
45.48坪
賃料+共益費
1,400,784円
30,800円/坪
保証金
1273万円
入居時期
2026年4月上旬
更新料
なし
償却費
なし
礼金
1ケ月
高輪エンパイヤビルの物件情報
高輪エンパイヤビル(港区高輪)は品川駅徒歩5分、高輪ゲートウェイ駅徒歩7分、泉岳寺駅徒歩7分の賃貸オフィスです。
高輪エンパイヤビルのアクセス
高輪エンパイヤビルのテナント募集中区画
| 階数 | 面積 | 賃料+共益費 | 保証金 | 入居時期 | 検討 | 図面 | 詳細 |
|---|---|---|---|---|---|---|---|
| 地下1 | 45.48坪 |
1,400,784円30,800円/坪
|
1273万円
|
2026年4月上旬 | |||
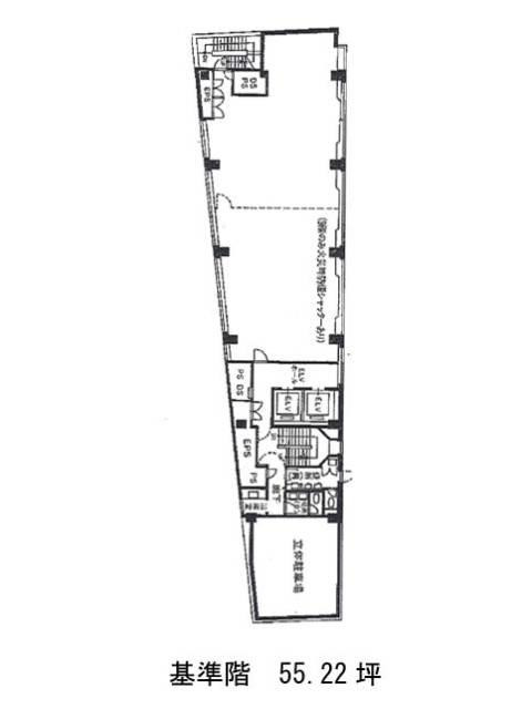
| 4 | 55.22坪 |
1,700,776円30,800円/坪
|
1546万円
|
2026年7月上旬 |


