セルクル赤坂2階の貸事務所・賃貸オフィス情報
セルクル赤坂2階の賃貸オフィス・貸事務所情報
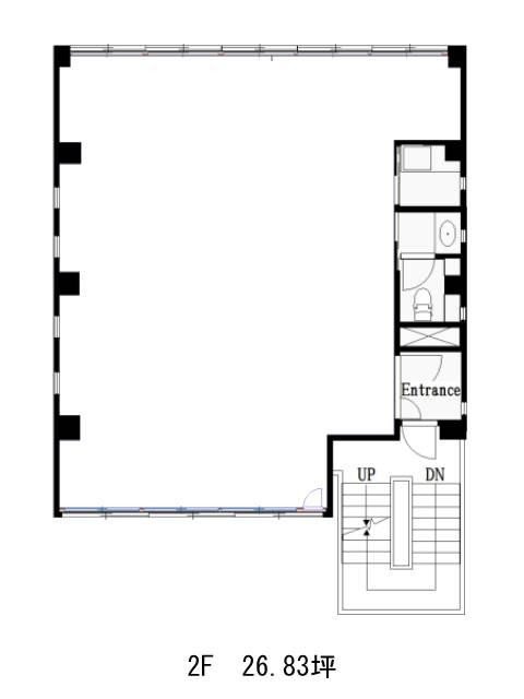
セルクル赤坂のフロア情報
募集階数
2階
面積
26.83坪
賃料+共益費
468,000円
17,443円/坪
保証金
127万円
入居時期
2026年4月
更新料
新1ケ月
償却費
1ケ月
礼金
1ケ月
セルクル赤坂
- 物件番号
- 133-00178
- 所在地
- 東京都港区赤坂4-2-25
- 竣工年
- 1988年9月
- 規模
- 地上3階/地下1階
- 男女共用トイレ
- 新耐震基準
セルクル赤坂のフロア情報
募集階数
2階
面積
26.83坪
賃料+共益費
468,000円
17,443円/坪
保証金
127万円
入居時期
2026年4月
更新料
新1ケ月
償却費
1ケ月
礼金
1ケ月
セルクル赤坂の物件情報
セルクル赤坂(港区赤坂)は赤坂見附駅徒歩6分、赤坂駅徒歩8分、永田町駅徒歩8分の賃貸オフィスです。
セルクル赤坂のアクセス
セルクル赤坂のテナント募集中区画
| 階数 | 面積 | 賃料+共益費 | 保証金 | 入居時期 | 検討 | 図面 | 詳細 |
|---|---|---|---|---|---|---|---|
| 2 | 26.83坪 |
468,000円17,443円/坪
|
127万円
|
2026年4月 |


