池田ビル6階の貸事務所・賃貸オフィス情報
池田ビル6階の賃貸オフィス・貸事務所情報
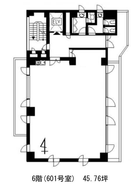
池田ビルのフロア情報
募集階数
6階
面積
45.76坪
賃料+共益費
1,182,896円
25,850円/坪
保証金
549万円
入居時期
即
更新料
新1ケ月
償却費
なし
礼金
1ケ月
池田ビル
- エレベーター
- 個別空調
- 男女別トイレ
- 駐車場
- 新耐震基準
池田ビルのフロア情報
募集階数
6階
面積
45.76坪
賃料+共益費
1,182,896円
25,850円/坪
保証金
549万円
入居時期
即
更新料
新1ケ月
償却費
なし
礼金
1ケ月
池田ビルの物件情報
池田ビル(渋谷区桜丘町)は渋谷駅徒歩6分、代官山駅徒歩12分、神泉駅徒歩12分の賃貸オフィスです。
池田ビルのアクセス
池田ビルのテナント募集中区画
| 階数 | 面積 | 賃料+共益費 | 保証金 | 入居時期 | 検討 | 図面 | 詳細 |
|---|---|---|---|---|---|---|---|
| 6 | 45.76坪 |
1,182,896円25,850円/坪
|
549万円
|
即 |


