ルカビルⅡ2階の貸事務所・賃貸オフィス情報
ルカビルⅡ2階の賃貸オフィス・貸事務所情報
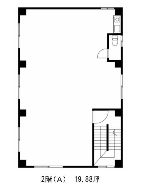
ルカビルⅡのフロア情報
募集階数
2階
面積
19.88坪
賃料+共益費
470,162円
23,650円/坪
保証金
85万円
入居時期
相談
更新料
新1ケ月
償却費
なし
礼金
なし
ルカビルⅡ
- エレベーター
- 男女共用トイレ
- 旧耐震基準
ルカビルⅡのフロア情報
募集階数
2階
面積
19.88坪
賃料+共益費
470,162円
23,650円/坪
保証金
85万円
入居時期
相談
更新料
新1ケ月
償却費
なし
礼金
なし
ルカビルⅡの物件情報
ルカビルⅡ(渋谷区渋谷)は表参道駅徒歩6分、渋谷駅徒歩9分、明治神宮前駅徒歩15分の賃貸オフィスです。
ルカビルⅡのアクセス
ルカビルⅡのテナント募集中区画
| 階数 | 面積 | 賃料+共益費 | 保証金 | 入居時期 | 検討 | 図面 | 詳細 |
|---|---|---|---|---|---|---|---|
| 2 | 19.88坪 |
470,162円23,650円/坪
|
85万円
|
相談 |


