PMO渋谷9階の貸事務所・賃貸オフィス情報
PMO渋谷9階の賃貸オフィス・貸事務所情報
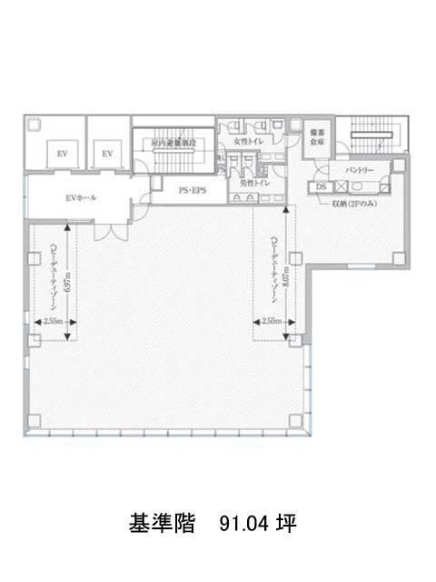
PMO渋谷のフロア情報
募集階数
9階
面積
91.04坪
賃料+共益費
応相談
応相談
保証金
応相談
入居時期
2026年12月上旬
更新料
なし
償却費
なし
礼金
なし
PMO渋谷
- エレベーター
- 個別空調
- 男女別トイレ
- 駐車場
- 新耐震基準
PMO渋谷のフロア情報
募集階数
9階
面積
91.04坪
賃料+共益費
応相談
応相談
保証金
応相談
入居時期
2026年12月上旬
更新料
なし
償却費
なし
礼金
なし
PMO渋谷の物件情報
PMO渋谷(渋谷区渋谷)は渋谷駅徒歩2分、表参道駅徒歩12分、明治神宮前駅徒歩12分の賃貸オフィスです。
PMO渋谷のアクセス
PMO渋谷のテナント募集中区画
| 階数 | 面積 | 賃料+共益費 | 保証金 | 入居時期 | 検討 | 図面 | 詳細 |
|---|---|---|---|---|---|---|---|
| 9 | 91.04坪 |
応相談応相談
|
応相談
|
2026年12月上旬 |


