郁文堂青山通りビル4階の貸事務所・賃貸オフィス情報
郁文堂青山通りビル4階の賃貸オフィス・貸事務所情報
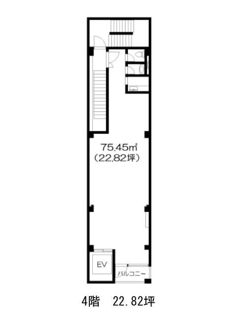
郁文堂青山通りビルのフロア情報
募集階数
4階
面積
22.82坪
賃料+共益費
627,550円
27,500円/坪
保証金
479万円
入居時期
2026年6月上旬
更新料
新1ケ月
償却費
20%
礼金
なし
郁文堂青山通りビル
- エレベーター
- 個別空調
- 男女共用トイレ
- 新耐震基準
郁文堂青山通りビルのフロア情報
募集階数
4階
面積
22.82坪
賃料+共益費
627,550円
27,500円/坪
保証金
479万円
入居時期
2026年6月上旬
更新料
新1ケ月
償却費
20%
礼金
なし
郁文堂青山通りビルの物件情報
郁文堂青山通りビル(渋谷区渋谷)は表参道駅徒歩6分、渋谷駅徒歩8分、明治神宮前駅徒歩15分の賃貸オフィスです。
郁文堂青山通りビルのアクセス
郁文堂青山通りビルのテナント募集中区画
| 階数 | 面積 | 賃料+共益費 | 保証金 | 入居時期 | 検討 | 図面 | 詳細 |
|---|---|---|---|---|---|---|---|
| 4 | 22.82坪 |
627,550円27,500円/坪
|
479万円
|
2026年6月上旬 |


