WISビル7階の貸事務所・賃貸オフィス情報
WISビル7階の賃貸オフィス・貸事務所情報
WISビルのフロア情報
募集階数
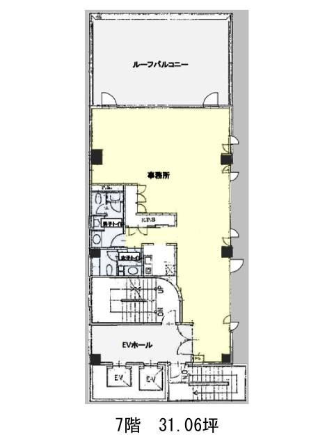
7階
面積
31.06坪
賃料+共益費
529,573円
17,050円/坪
保証金
337万円
入居時期
2026年7月上旬
更新料
新1ケ月
償却費
1ケ月
礼金
1ケ月
WISビル
- 物件番号
- 237-00462
- 所在地
- 東京都新宿区西新宿4-29-6
- 竣工年
- 1992年6月
- 規模
- 地上7階/地下2階
- エレベーター
- 個別空調
- 男女別トイレ
- 新耐震基準
WISビルのフロア情報
募集階数
7階
面積
31.06坪
賃料+共益費
529,573円
17,050円/坪
保証金
337万円
入居時期
2026年7月上旬
更新料
新1ケ月
償却費
1ケ月
礼金
1ケ月
WISビルの物件情報
WISビル(新宿区西新宿)は都庁前駅徒歩8分、西新宿五丁目駅徒歩8分、西新宿駅徒歩11分の賃貸オフィスです。
WISビルのアクセス
WISビルのテナント募集中区画
| 階数 | 面積 | 賃料+共益費 | 保証金 | 入居時期 | 検討 | 図面 | 詳細 |
|---|---|---|---|---|---|---|---|
| 7 | 31.06坪 |
529,573円17,050円/坪
|
337万円
|
2026年7月上旬 |


