銀座和田ビル10階の貸事務所・賃貸オフィス情報
銀座和田ビル10階の賃貸オフィス・貸事務所情報
銀座和田ビルのフロア情報
募集階数
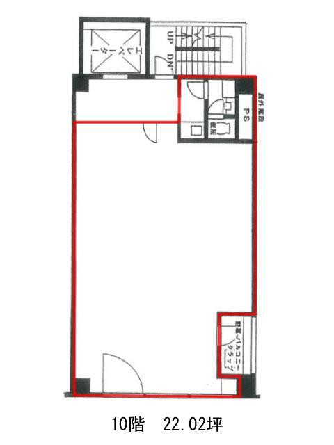
10階
面積
22.02坪
賃料+共益費
応相談
応相談
保証金
応相談
入居時期
2026年7月上旬
更新料
新1ケ月
償却費
なし
礼金
なし
銀座和田ビル
- 物件番号
- 634-00533
- 所在地
- 東京都中央区銀座1-14-7
- 竣工年
- 1985年7月
- 規模
- 地上10階/地下1階
- エレベーター
- 個別空調
- 男女共用トイレ
- 新耐震基準
銀座和田ビルのフロア情報
募集階数
10階
面積
22.02坪
賃料+共益費
応相談
応相談
保証金
応相談
入居時期
2026年7月上旬
更新料
新1ケ月
償却費
なし
礼金
なし
銀座和田ビルの物件情報
銀座和田ビル(中央区銀座)は銀座一丁目駅徒歩2分、宝町駅徒歩4分、東銀座駅徒歩4分の賃貸オフィスです。
銀座和田ビルのアクセス
銀座和田ビルのテナント募集中区画
| 階数 | 面積 | 賃料+共益費 | 保証金 | 入居時期 | 検討 | 図面 | 詳細 |
|---|---|---|---|---|---|---|---|
| 10 | 22.02坪 |
応相談応相談
|
応相談
|
2026年7月上旬 |


