新中央ビル(京橋)6階の貸事務所・賃貸オフィス情報
新中央ビル(京橋)6階の賃貸オフィス・貸事務所情報
新中央ビル(京橋)のフロア情報
募集階数
6階
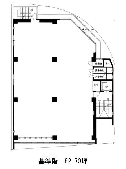
面積
82.70坪
賃料+共益費
1,364,550円
16,500円/坪
保証金
909万円
入居時期
即
更新料
新1ケ月
償却費
10%
礼金
なし
新中央ビル(京橋)
- エレベーター
- 個別空調
- 男女別トイレ
- 耐震補強済み
新中央ビル(京橋)のフロア情報
募集階数
6階
面積
82.70坪
賃料+共益費
1,364,550円
16,500円/坪
保証金
909万円
入居時期
即
更新料
新1ケ月
償却費
10%
礼金
なし
新中央ビル(京橋)の物件情報
新中央ビル(京橋)(中央区新富)は宝町駅徒歩4分、新富町駅徒歩5分、八丁堀駅徒歩6分の賃貸オフィスです。
新中央ビル(京橋)のアクセス
新中央ビル(京橋)のテナント募集中区画
| 階数 | 面積 | 賃料+共益費 | 保証金 | 入居時期 | 検討 | 図面 | 詳細 |
|---|---|---|---|---|---|---|---|
| 6 | 82.70坪 |
1,364,550円16,500円/坪
|
909万円
|
即 |


