新富太陽ビル5階の貸事務所・賃貸オフィス情報
新富太陽ビル5階の賃貸オフィス・貸事務所情報
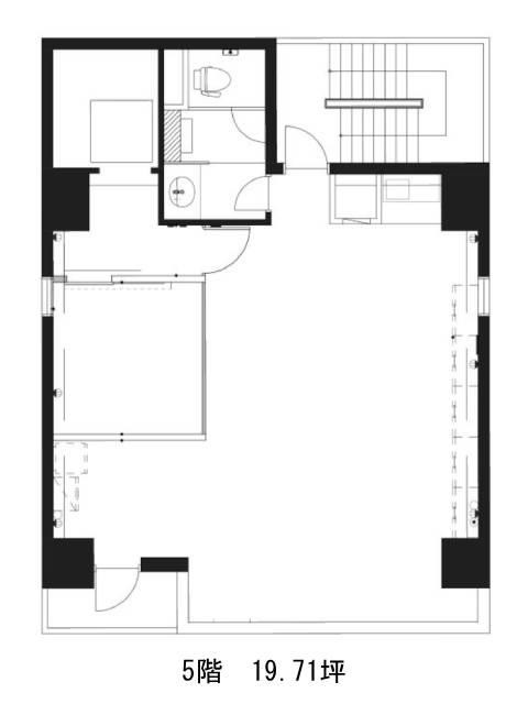
新富太陽ビルのフロア情報
募集階数
5階
面積
19.71坪
賃料+共益費
433,620円
22,000円/坪
保証金
201万円
入居時期
2026年2月上旬
更新料
新1ケ月
償却費
1ケ月
礼金
なし
新富太陽ビル
- 物件番号
- 638-00022
- 所在地
- 東京都中央区新富2-2-13
- 竣工年
- 1992年4月
- 規模
- 地上7階/地下1階
- エレベーター
- 個別空調
- 男女共用トイレ
- 新耐震基準
新富太陽ビルのフロア情報
募集階数
5階
面積
19.71坪
賃料+共益費
433,620円
22,000円/坪
保証金
201万円
入居時期
2026年2月上旬
更新料
新1ケ月
償却費
1ケ月
礼金
なし
新富太陽ビルの物件情報
新富太陽ビル(中央区新富)は新富町駅徒歩2分、宝町駅徒歩7分、築地駅徒歩7分の賃貸オフィスです。
新富太陽ビルのアクセス
新富太陽ビルのテナント募集中区画
| 階数 | 面積 | 賃料+共益費 | 保証金 | 入居時期 | 検討 | 図面 | 詳細 |
|---|---|---|---|---|---|---|---|
| 5 | 19.71坪 |
433,620円22,000円/坪
|
201万円
|
2026年2月上旬 |


