ACN日本橋リバーサイド8階の貸事務所・賃貸オフィス情報
ACN日本橋リバーサイド8階の賃貸オフィス・貸事務所情報
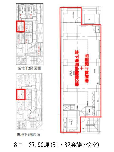
ACN日本橋リバーサイドのフロア情報
募集階数
8階
面積
27.90坪
賃料+共益費
応相談
応相談
保証金
応相談
入居時期
2026年5月上旬
更新料
新1ケ月
償却費
1ケ月
礼金
なし
ACN日本橋リバーサイド
- 物件番号
- 657-00202
- 所在地
- 東京都中央区日本橋浜町3-23-1
- 竣工年
- 1992年8月
- 規模
- 地上8階/地下3階
- エレベーター
- 個別空調
- 男女別トイレ
- 新耐震基準
ACN日本橋リバーサイドのフロア情報
募集階数
8階
面積
27.90坪
賃料+共益費
応相談
応相談
保証金
応相談
入居時期
2026年5月上旬
更新料
新1ケ月
償却費
1ケ月
礼金
なし
ACN日本橋リバーサイドの物件情報
ACN日本橋リバーサイド(中央区日本橋浜町)は浜町駅徒歩5分、水天宮前駅徒歩7分、人形町駅徒歩10分の賃貸オフィスです。
ACN日本橋リバーサイドのアクセス
ACN日本橋リバーサイドのテナント募集中区画
| 階数 | 面積 | 賃料+共益費 | 保証金 | 入居時期 | 検討 | 図面 | 詳細 |
|---|---|---|---|---|---|---|---|
| 2 | 40.44坪 |
応相談応相談
|
応相談
|
2026年7月上旬 | |||
| 5 | 41.59坪 |
応相談応相談
|
応相談
|
2026年8月上旬 | |||
| 8 | 27.90坪 |
応相談応相談
|
応相談
|
2026年5月上旬 |


