日本橋蛎殻町東急ビル2-3Fの貸事務所・賃貸オフィス情報
日本橋蛎殻町東急ビル2-3Fの賃貸オフィス・貸事務所情報
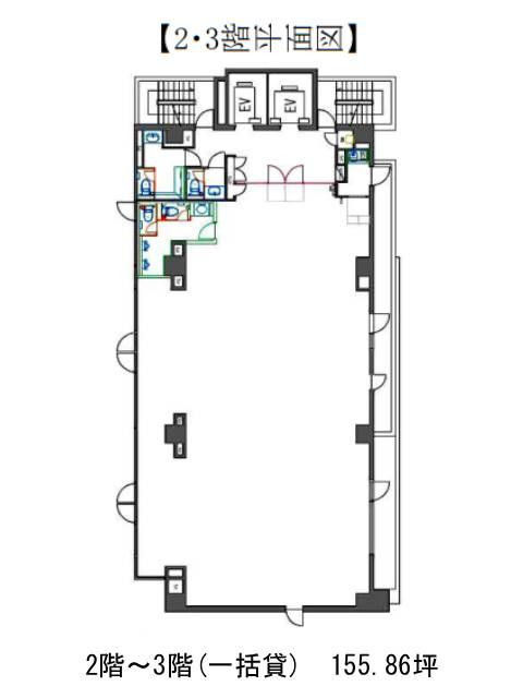
日本橋蛎殻町東急ビルのフロア情報
募集階数
2-3F
面積
155.86坪
賃料+共益費
3,428,920円
22,000円/坪
保証金
1870万円
入居時期
即
更新料
新1ケ月
償却費
なし
礼金
1ケ月
日本橋蛎殻町東急ビル
- 物件番号
- 662-00016
- 所在地
- 東京都中央区日本橋蛎殻町1-29-4
- 竣工年
- 1988年12月
- 規模
- 地上10階/地下1階
- エレベーター
- 個別空調
- 男女別トイレ
- 新耐震基準
日本橋蛎殻町東急ビルのフロア情報
募集階数
2-3F
面積
155.86坪
賃料+共益費
3,428,920円
22,000円/坪
保証金
1870万円
入居時期
即
更新料
新1ケ月
償却費
なし
礼金
1ケ月
日本橋蛎殻町東急ビルの物件情報
日本橋蛎殻町東急ビル(中央区日本橋蛎殻町)は水天宮前駅徒歩1分、人形町駅徒歩4分、茅場町駅徒歩6分の賃貸オフィスです。
日本橋蛎殻町東急ビルのアクセス
日本橋蛎殻町東急ビルのテナント募集中区画
| 階数 | 面積 | 賃料+共益費 | 保証金 | 入居時期 | 検討 | 図面 | 詳細 |
|---|---|---|---|---|---|---|---|
| 2-3F | 155.86坪 |
3,428,920円22,000円/坪
|
1870万円
|
即 | |||
| 2 | 77.93坪 |
1,714,460円22,000円/坪
|
935万円
|
即 | |||
| 3 | 77.93坪 |
1,714,460円22,000円/坪
|
935万円
|
即 |


