U-Axis7階の貸事務所・賃貸オフィス情報
U-Axis7階の賃貸オフィス・貸事務所情報
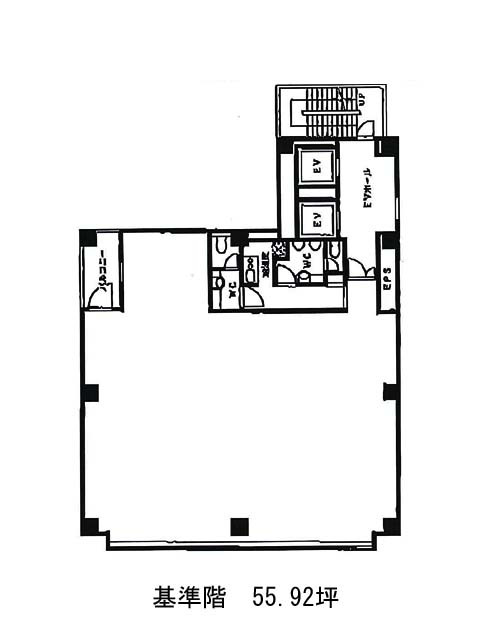
U-Axisのフロア情報
募集階数
7階
面積
55.92坪
賃料+共益費
1,107,216円
19,800円/坪
保証金
810万円
入居時期
2026年9月上旬
更新料
なし
償却費
なし
礼金
なし
U-Axis
- エレベーター
- 個別空調
- 男女別トイレ
- 新耐震基準
U-Axisのフロア情報
募集階数
7階
面積
55.92坪
賃料+共益費
1,107,216円
19,800円/坪
保証金
810万円
入居時期
2026年9月上旬
更新料
なし
償却費
なし
礼金
なし
U-Axisの物件情報
U-Axis(中央区入船)は新富町駅徒歩3分、八丁堀駅徒歩4分、築地駅徒歩6分の賃貸オフィスです。
U-Axisのアクセス
U-Axisのテナント募集中区画
| 階数 | 面積 | 賃料+共益費 | 保証金 | 入居時期 | 検討 | 図面 | 詳細 |
|---|---|---|---|---|---|---|---|
| 7 | 55.92坪 |
1,107,216円19,800円/坪
|
810万円
|
2026年9月上旬 |


