サトービル2階の貸事務所・賃貸オフィス情報
サトービル2階の賃貸オフィス・貸事務所情報
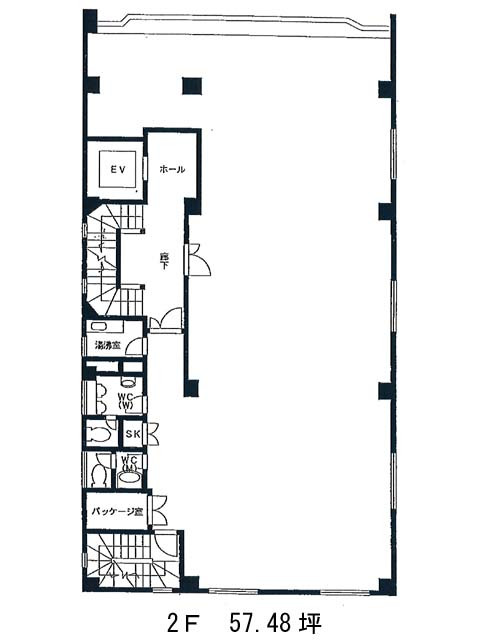
サトービルのフロア情報
募集階数
2階
面積
57.48坪
賃料+共益費
980,035円
17,051円/坪
保証金
470万円
入居時期
相談
更新料
新1ケ月
償却費
1ケ月
礼金
1ケ月
サトービル
- エレベーター
- 男女別トイレ
- 旧耐震基準
サトービルのフロア情報
募集階数
2階
面積
57.48坪
賃料+共益費
980,035円
17,051円/坪
保証金
470万円
入居時期
相談
更新料
新1ケ月
償却費
1ケ月
礼金
1ケ月
サトービルの物件情報
サトービル(豊島区南池袋)は東池袋駅徒歩3分、池袋駅徒歩5分、東池袋四丁目駅徒歩7分の賃貸オフィスです。
サトービルのアクセス
サトービルのテナント募集中区画
| 階数 | 面積 | 賃料+共益費 | 保証金 | 入居時期 | 検討 | 図面 | 詳細 |
|---|---|---|---|---|---|---|---|
| 2 | 57.48坪 |
980,035円17,051円/坪
|
470万円
|
相談 |


