ワイズビル地下1階の貸事務所・賃貸オフィス情報
ワイズビル地下1階の賃貸オフィス・貸事務所情報
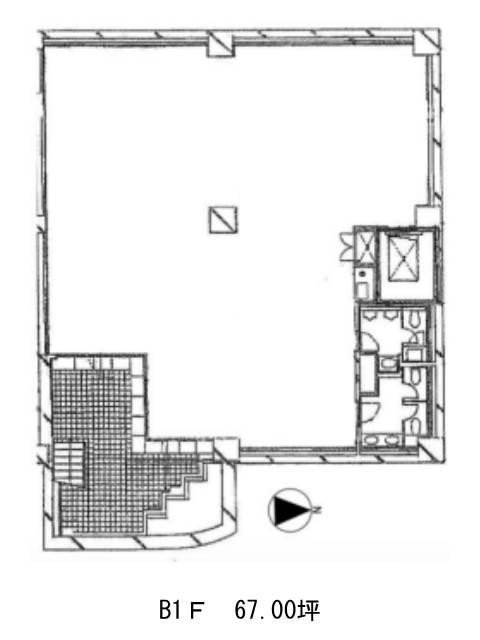
ワイズビルのフロア情報
募集階数
地下1階
面積
67.00坪
賃料+共益費
810,700円
12,100円/坪
保証金
361万円
入居時期
相談
更新料
新1ケ月
償却費
なし
礼金
2ケ月
ワイズビル
- エレベーター
- 個別空調
- 男女別トイレ
- 新耐震基準
ワイズビルのフロア情報
募集階数
地下1階
面積
67.00坪
賃料+共益費
810,700円
12,100円/坪
保証金
361万円
入居時期
相談
更新料
新1ケ月
償却費
なし
礼金
2ケ月
ワイズビルの物件情報
ワイズビル(豊島区南池袋)は東池袋駅徒歩4分、都電雑司ヶ谷駅徒歩6分、池袋駅徒歩6分の賃貸オフィスです。
ワイズビルのアクセス
ワイズビルのテナント募集中区画
| 階数 | 面積 | 賃料+共益費 | 保証金 | 入居時期 | 検討 | 図面 | 詳細 |
|---|---|---|---|---|---|---|---|
| 地下1 | 67.00坪 |
810,700円12,100円/坪
|
361万円
|
相談 |


