スタッフが仲良くミーティングしている 泡 泡

STAFF BLOG

スタッフが仲良くミーティングしている
微笑みながら仕事をする女性 泡

市ヶ谷駅徒歩4分・外濠公園前のガラス張りオフィス|《AD市ヶ谷ビル》

AD市ヶ谷ビルのメイン画像

「AD市ヶ谷ビル」は、外堀通り沿い・外濠公園近くに立地するオフィスビルです。市ヶ谷駅徒歩4分と、複数路線が利用可能な交通利便性を備えています。
前面は大きくガラスを用いた曲線的なファサードが印象的で、通りからの視認性も良好。公園の緑を感じられる立地は、都心にありながら穏やかな印象を与える環境です。

この物件の関連画像を見る

OTHER PHOTO
AD市ヶ谷ビルのエントランス エントランス
AD市ヶ谷ビルのホール ホール
AD市ヶ谷ビルのエレベーター エレベーター

この物件の間取り情報を見る

FLOOR MAP

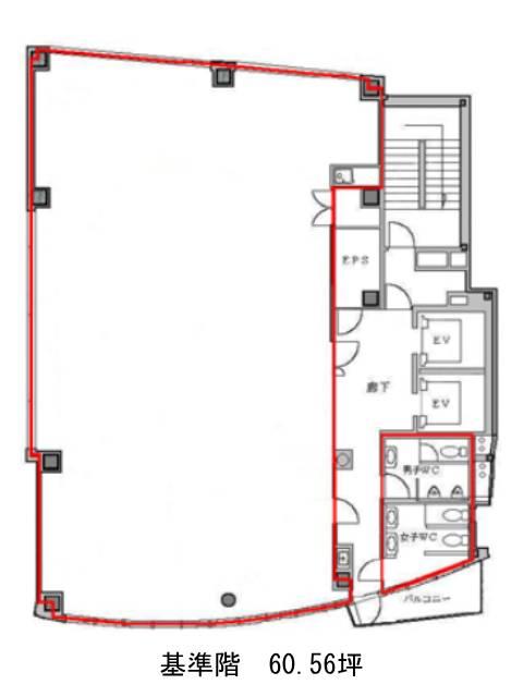
基準階は60.56坪。大きなワンフロア構成で、柱位置も壁面寄りとなっており、執務スペースは整形に近くレイアウト計画が立てやすい形状。
エレベーターは2基で、水回り(男女別トイレ・給湯室)を室外共用部にまとめて配置しているため、動線分離がしやすい設計です。
会議室や役員室を配置するなど柔軟なプランニングが検討でき、1フロア完結型の使い方が可能な点も評価ポイントです。

建物情報の詳細を確認する

INFORMATION

名称AD市ヶ谷ビル

住所東京都新宿区市谷本村町2-5

竣工2010年9月

規模地上11階/地下1階

構造S造(一部SRC造)

交通JR中央本線・東京メトロ有楽町線・都営新宿線「市ヶ谷駅」徒歩4分

設備等エレベーター台・OAフロア・個別空調・男女別トイレ・機械警備・駐車場

外堀通り沿いで視認性を確保|市ヶ谷エリア60坪超オフィス

「AD市ヶ谷ビル」は、市ヶ谷駅徒歩4分、外堀通り沿い・外濠公園近くに立地するオフィスビルです。複数路線が利用でき、都内主要エリアへの移動もスムーズです。
前面ガラスを活かした外観は、通りからの視認性も良好で、来訪の多い企業や対外的な印象を意識する業種にも適しています。
外濠公園が目の前に広がり、季節によって感じられる環境も魅力の一つ。昼休みに公園沿いを歩くなど、気分転換のしやすい立地といえるでしょう。

基準階60.56坪のワンフロア構成は、部門ごとにゾーニングしやすい広さ。会議室や役員室を窓側に配置するなどレイアウト計画も立てやすい形状です。
室外共用部にはエレベーター2基、男女別トイレ・給湯室を集約して配置しており、動線の整理もしやすく、1フロアで業務を完結させたい企業にも使い勝手の良い物件です。

他のおすすめ物件を見る

OTHER

「CIRCLES日本橋浜町」は2024年7月竣工の三菱地所ブランドによる新築オフィスビル。
都営新宿線・浜町駅から徒歩2分という好アクセスのポジションにあり、「人形町」「馬喰横山」「東日本橋」といった複数駅も徒歩圏内です。
外観はガラスを基調にしたモダンなデザインで、街並みの中でも存在感がありつつ街に溶け込むスタイリッシュさ。周辺には飲食・カフェ・ショッピングスポットも充実しており、働く毎日を後押しします。

2026.01.08 中央区

御成門駅出口すぐ、御成門交差点角地に立つ菱進御成門ビル。2015年竣工の外観はガラスウォールと洗練されたマテリアルで構成されており、通りに映える存在感があります。
1階にコンビニを備え、日常的な利便性も確保。都営三田線「御成門駅」が徒歩1分、他にも「大門」「神谷町」「新橋」など複数駅が使えるアクセスの良さで、通勤・来客ともにストレスが少ない立地です。

2025.12.11 港区