スタッフが仲良くミーティングしている 泡 泡

STAFF BLOG

スタッフが仲良くミーティングしている
微笑みながら仕事をする女性 泡

新宿駅・新宿西口駅を自在に使える、実務向きオフィス《第3雨宮ビル》

第3雨宮ビルのメイン画像

第3雨宮ビルは、新宿駅および新宿西口駅から徒歩4分という立地。複数路線が集中する新宿エリアを日常使いできるため、通勤はもちろん、取引先へのアクセスや外出の多い業務にも対応しやすい立地です。
周辺には飲食店やコンビニが豊富に揃っており、ランチや打ち合わせ、残業時の利便性も確保。華やかさと実用性が共存する新宿エリアらしい環境の中で、効率的なビジネス拠点を構えたい企業に適したロケーションです。

この物件の関連画像を見る

OTHER PHOTO
第3雨宮ビルのエントランス エントランス
第3雨宮ビルのエントランス エントランス
第3雨宮ビルのホール ホール
第3雨宮ビルのエレベーター エレベーター

この物件の間取り情報を見る

FLOOR MAP

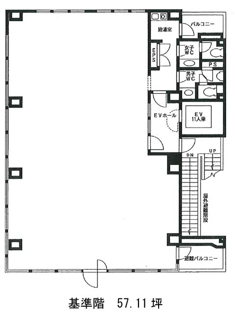
基準階は約57坪。シンプルな整形かつ無柱のオフィス空間のため、デスクレイアウトや会議室配置を柔軟に計画できます。
水回りはすべて室外に集約されており、執務スペースを無駄なく確保できる点も実務面でのメリットです。

建物情報の詳細を確認する

INFORMATION

名称第3雨宮ビル

住所東京都新宿区西新宿7-9-18

竣工2003年9月

規模地上9階建て

構造S造

交通都営大江戸線「新宿西口駅」徒歩4分

設備等エレベーター1台・OAフロア・個別空調・男女別トイレ・機械警備

立地で差がつく、新宿エリアの堅実なオフィス環境

 新宿駅・新宿西口駅の双方から徒歩4分という立地は、日々の通勤はもちろん、来客対応や外出の多い業務においても大きなアドバンテージとなります。
都内主要エリアへスムーズにアクセスできるため、スピード感が求められるビジネスにも相性の良い環境です。

基準階約57坪のオフィスフロアは、整形かつ無柱設計。レイアウトの自由度が高く、少人数から中規模オフィスまで柔軟に対応できます。
水回りを室外にまとめることで、執務スペースを効率的に活用できる点も、実務を重視する企業には嬉しいポイントです。

OAフロアや個別空調、男女別トイレ、機械警備といった基本設備も揃っており、日常業務を支える環境は十分。さらに周辺には飲食店やコンビニが充実しており、ランチや急な打ち合わせ、残業時にも不便を感じにくい立地です。
新宿という都市の利便性を最大限に活かしながら、堅実で使いやすいオフィスを構えたい企業におすすめできる一棟です。

他のおすすめ物件を見る

OTHER

「CIRCLES日本橋浜町」は2024年7月竣工の三菱地所ブランドによる新築オフィスビル。
都営新宿線・浜町駅から徒歩2分という好アクセスのポジションにあり、「人形町」「馬喰横山」「東日本橋」といった複数駅も徒歩圏内です。
外観はガラスを基調にしたモダンなデザインで、街並みの中でも存在感がありつつ街に溶け込むスタイリッシュさ。周辺には飲食・カフェ・ショッピングスポットも充実しており、働く毎日を後押しします。

2026.01.08 中央区

御成門駅出口すぐ、御成門交差点角地に立つ菱進御成門ビル。2015年竣工の外観はガラスウォールと洗練されたマテリアルで構成されており、通りに映える存在感があります。
1階にコンビニを備え、日常的な利便性も確保。都営三田線「御成門駅」が徒歩1分、他にも「大門」「神谷町」「新橋」など複数駅が使えるアクセスの良さで、通勤・来客ともにストレスが少ない立地です。

2025.12.11 港区