スタッフが仲良くミーティングしている 泡 泡

STAFF BLOG

スタッフが仲良くミーティングしている
微笑みながら仕事をする女性 泡

神田駅2分×角地×靖国通り沿い|《ヒューリック神田須田町ビル》の魅力とは?

ヒューリック神田須田町ビルのメイン画像

「ヒューリック神田須田町ビル」は、神田駅から徒歩2分の好アクセス物件。須田町交差点に面する角地で、初めて訪れる方にも分かりやすい立地が魅力です。
全面ガラスのスタイリッシュな外観は、先進的かつクリーンな企業イメージを演出。周辺には飲食店やカフェ、銀行も点在しており、ランチや来客対応にも便利な環境です。
駅チカながら落ち着きも感じられ、ビジネス拠点として高いポテンシャルを誇ります。

この物件の関連画像を見る

OTHER PHOTO
ヒューリック神田須田町ビルのエントランス エントランス
ヒューリック神田須田町ビルのエントランス エントランス
ヒューリック神田須田町ビルのホール ホール
ヒューリック神田須田町ビルのエレベーター エレベーター

この物件の間取り情報を見る

FLOOR MAP

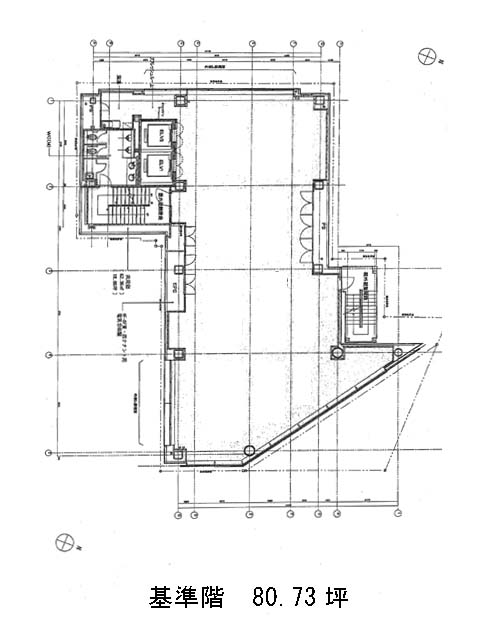
基準階は80.73坪で、やや特徴的な形です。柱は外周にまとめられているため、レイアウト効率はある程度保たれています。
エレベーターは2基、室内へはダイレクトイン仕様です。

建物情報の詳細を確認する

INFORMATION

名称ヒューリック神田須田町ビル

住所東京都千代田区神田須田町1-14-1

竣工2004年5月

規模地上10階/地下1階

構造SRC造

交通JR各線・東京メトロ銀座線「神田駅」徒歩2分

設備等エレベーター2台・OAフロア・個別空調・男女別トイレ・機械警備・駐車場

神田駅チカ・角地の視認性良好オフィス!ヒューリック神田須田町ビル特集

神田駅から徒歩2分という利便性に加え、須田町交差点に面する角地という視認性の高さを備えた「ヒューリック神田須田町ビル」。
ガラス張りのファサードで、洗練された印象を与える外観が目を引きます。複数駅や秋葉原方面からのアクセスも良好で、来客が多い企業や営業系業種にもフィットする環境です。

基準階は80.73坪で、やや特徴的な区画。柱は外周にまとめられており、ある程度の自由レイアウトが可能です。
水回りはフロア奥に集約されており、業務エリアとの分離が明確で、執務環境を損なうことなく快適に利用できます。
エレベーターは2基、室内へはダイレクトイ仕様で、快適な移動を叶えます。

角地立地と視認性の高さから、来客の多い士業・コンサル・IT企業などにもおすすめ。神田・秋葉原エリアを活動拠点とする企業にとって、機能性とデザイン性の両立が魅力のオフィス物件です。

他のおすすめ物件を見る

OTHER

「CIRCLES日本橋浜町」は2024年7月竣工の三菱地所ブランドによる新築オフィスビル。
都営新宿線・浜町駅から徒歩2分という好アクセスのポジションにあり、「人形町」「馬喰横山」「東日本橋」といった複数駅も徒歩圏内です。
外観はガラスを基調にしたモダンなデザインで、街並みの中でも存在感がありつつ街に溶け込むスタイリッシュさ。周辺には飲食・カフェ・ショッピングスポットも充実しており、働く毎日を後押しします。

2026.01.08 中央区

御成門駅出口すぐ、御成門交差点角地に立つ菱進御成門ビル。2015年竣工の外観はガラスウォールと洗練されたマテリアルで構成されており、通りに映える存在感があります。
1階にコンビニを備え、日常的な利便性も確保。都営三田線「御成門駅」が徒歩1分、他にも「大門」「神谷町」「新橋」など複数駅が使えるアクセスの良さで、通勤・来客ともにストレスが少ない立地です。

2025.12.11 港区