茅場町駅徒歩1分・角地立地の駅チカオフィス《茅場町駅前ビル》
「茅場町駅前ビル」は、茅場町駅徒歩1分、新大橋通り沿いの角地に立地するオフィスビルです。駅出口からのアクセスが良く、来訪者にも案内しやすいロケーションといえます。
ガラス面を多く用いた外観は通りからの視認性に優れています。周辺には飲食店やコンビニ、金融機関が揃い、日常業務の利便性も確保されています。
「茅場町駅前ビル」は、茅場町駅徒歩1分、新大橋通り沿いの角地に立地するオフィスビルです。駅出口からのアクセスが良く、来訪者にも案内しやすいロケーションといえます。
ガラス面を多く用いた外観は通りからの視認性に優れています。周辺には飲食店やコンビニ、金融機関が揃い、日常業務の利便性も確保されています。
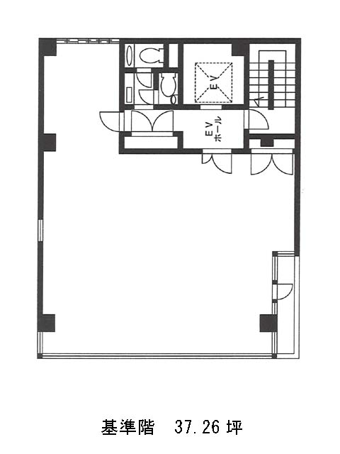
基準階は37.26坪。執務スペースは整形に近く、レイアウト計画を立てやすい区画です。
男女別トイレや給湯室は室外共用部に集約され、執務エリアとの分離が明確にできそうです。
名称茅場町駅前ビル
住所東京都中央区日本橋茅場町2-11-8
竣工2003年7月
規模地上9階
構造S造
交通東京メトロ日比谷線・東西線「茅場町駅」徒歩1分
設備等エレベーター1台・OAフロア・個別空調・男女別トイレ・機械警備・駐車場
茅場町駅前ビルの募集要項や最新の賃料相場について詳しく知りたい方は、「茅場町駅前ビル|貸事務所東京.WAVE」をご覧ください。
「茅場町駅前ビル」は、茅場町駅徒歩1分という好アクセスなオフィスビルです。新大橋通り沿いに位置し、視認性と案内のしやすさを兼ね備えた立地が特徴です。
金融機関やオフィスが集積するエリアで、ビジネス拠点として安定感のある環境といえます。
基準階は37.26坪のワンフロア構成。整形に近い執務スペースはレイアウト効率が高く、会議室や応接スペースを計画的に配置しやすい間取りです。
水回り(男女別トイレ・給湯室)を室外共用部にまとめているため、執務動線と来客動線の分離も図りやすい設計となっています。
10〜20名規模の事務所や支店利用、士業やコンサルティング企業など、来客対応を重視する業種にも適しており、駅徒歩1分という立地を活かし、機動力と信頼感を両立させたい企業におすすめな物件といえるでしょう。
2026.01.08 中央区
「CIRCLES日本橋浜町」は2024年7月竣工の三菱地所ブランドによる新築オフィスビル。
都営新宿線・浜町駅から徒歩2分という好アクセスのポジションにあり、「人形町」「馬喰横山」「東日本橋」といった複数駅も徒歩圏内です。
外観はガラスを基調にしたモダンなデザインで、街並みの中でも存在感がありつつ街に溶け込むスタイリッシュさ。周辺には飲食・カフェ・ショッピングスポットも充実しており、働く毎日を後押しします。
2026.01.08 中央区
2025.12.11 港区
御成門駅出口すぐ、御成門交差点角地に立つ菱進御成門ビル。2015年竣工の外観はガラスウォールと洗練されたマテリアルで構成されており、通りに映える存在感があります。
1階にコンビニを備え、日常的な利便性も確保。都営三田線「御成門駅」が徒歩1分、他にも「大門」「神谷町」「新橋」など複数駅が使えるアクセスの良さで、通勤・来客ともにストレスが少ない立地です。
2025.12.11 港区