スタッフが仲良くミーティングしている 泡 泡

STAFF BLOG

スタッフが仲良くミーティングしている
微笑みながら仕事をする女性 泡

信頼感あるロケーションと快適空間。《麹町プレイス》で新たな一歩を

麹町プレイスのメイン画像

新宿通り沿いの角地に位置する「麹町プレイス」は、半蔵門駅から徒歩2分というアクセス性に優れたオフィスビルです。
整った外観と上品なエントランスは、訪れる人に安心感と信頼感を与えるデザイン。官公庁や大手企業が多く集まるこのエリアは、法律事務所や士業、コンサル系企業など、信頼性の高い業種に特に適した環境です。

この物件の関連画像を見る

OTHER PHOTO
麹町プレイスのエントランス エントランス
麹町プレイスのエントランス エントランス
麹町プレイスのエレベーター エレベーター
麹町プレイスのホール ホール

この物件の間取り情報を見る

FLOOR MAP

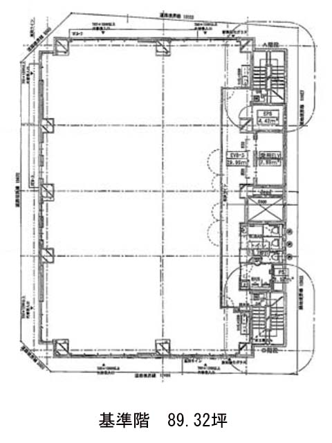
基準階約90坪の貸室は、長方形の整形無柱空間で、効率的なレイアウトが可能です。執務スペースに柱が干渉しないため、会議室・個人ブース・執務エリアを自由に設計できます。
男女別トイレと給湯室は執務スペース外に集約され、作業空間を最大限に活用できる点も魅力。OAフロア対応で、通信インフラにも柔軟に対応します。機能性と快適性を両立する、完成度の高いオフィス仕様です。

建物情報の詳細を確認する

INFORMATION

名称麹町プレイス

住所東京都千代田区麹町2-3-9

竣工2006年9月

規模地上12階/地下1階

構造SRC造

交通東京メトロ半蔵門線「半蔵門駅」徒歩2分

設備等エレベーター2台・OAフロア・個別空調・男女別トイレ・機械警備・駐車場

アクセス・空間・安心感。バランスの取れた麹町プレイスをチェック!

 半蔵門駅から徒歩2分。ビジネス街としての落ち着きと格式を併せ持つ麹町エリアに佇む「麹町プレイス」は、新宿通りに面した角地に立地する視認性の高いオフィスビルです。
上品なファサードと洗練されたエントランスが、来訪者に好印象を与える佇まいです。

基準階は約89坪。長方形かつ無柱設計の執務空間は、用途やレイアウトに応じて柔軟なゾーニングが可能です。
OAフロアや男女別トイレ、給湯室は室外に配置されており、執務エリアを最大限に確保できる点もポイントです。

機械警備や駐車場も完備しており、セキュリティや利便性の面でも安心。信頼性が求められる士業やコンサル系企業などにも適したロケーションと仕様を兼ね備えています。
快適さと信頼感を備えた「麹町プレイス」で、次のビジネスステージを始めてみませんか?

他のおすすめ物件を見る

OTHER

「CIRCLES日本橋浜町」は2024年7月竣工の三菱地所ブランドによる新築オフィスビル。
都営新宿線・浜町駅から徒歩2分という好アクセスのポジションにあり、「人形町」「馬喰横山」「東日本橋」といった複数駅も徒歩圏内です。
外観はガラスを基調にしたモダンなデザインで、街並みの中でも存在感がありつつ街に溶け込むスタイリッシュさ。周辺には飲食・カフェ・ショッピングスポットも充実しており、働く毎日を後押しします。

2026.01.08 中央区

御成門駅出口すぐ、御成門交差点角地に立つ菱進御成門ビル。2015年竣工の外観はガラスウォールと洗練されたマテリアルで構成されており、通りに映える存在感があります。
1階にコンビニを備え、日常的な利便性も確保。都営三田線「御成門駅」が徒歩1分、他にも「大門」「神谷町」「新橋」など複数駅が使えるアクセスの良さで、通勤・来客ともにストレスが少ない立地です。

2025.12.11 港区