スタッフが仲良くミーティングしている 泡 泡

STAFF BLOG

スタッフが仲良くミーティングしている
微笑みながら仕事をする女性 泡

角地×ワイドスパン。《PMO渋谷Ⅱ》が叶える余白ある働き方

PMO渋谷Ⅱのメイン画像

「PMO渋谷2」は渋谷の角地に立地し、前面道路に対してワイドなファサードを構える一棟です。
渋谷駅の利用が可能なポジションで、フレキシブルなアクセス性が魅力。ガラスウォールを基調とした外観は透明感があり、渋谷の街並みの中でも品格ある佇まいを形成しています。
近隣には飲食・商業・サービス施設が揃い、日常の利便性も高い立地です。

この物件の関連画像を見る

OTHER PHOTO
PMO渋谷Ⅱのエントランス エントランス
PMO渋谷Ⅱのホール ホール

この物件の間取り情報を見る

FLOOR MAP

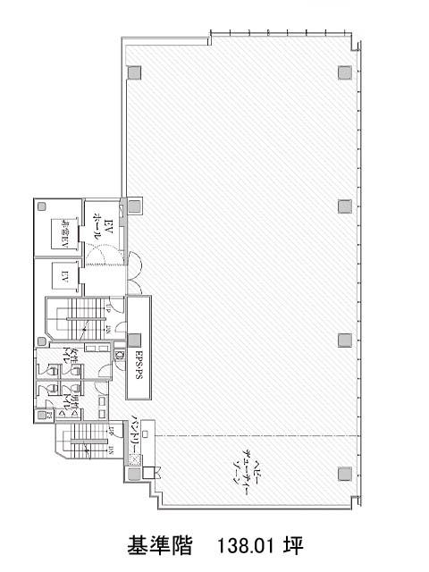
基準階は138坪の広々としたワンフロア。前面道路に対してワイドスパンで設計されており、窓面が広く、採光性と開放感に優れています。
また、執務空間に干渉しない室内隅に設けられた水回り(男女別トイレ、パントリー)がフロアの占有性を高めています。

建物情報の詳細を確認する

INFORMATION

名称PMO渋谷Ⅱ

住所東京都渋谷区渋谷3-1-1

竣工2020年8月

規模地上11階/地下1階

構造S造

交通各線「渋谷駅」徒歩5分

設備等エレベーター2台・OAフロア・個別空調・男女別トイレ・機械警備・駐車場

渋谷で“使える空間”。PMO渋谷2がつくる合理的オフィス

渋谷という都市の“動”と、内側の“落ち着き”——
両方を求める企業にとって、「PMO渋谷Ⅱ」は理想的なオフィス環境を提供する一棟です。
渋谷駅が利用できる利便性に加え、角地・ワイドスパンで設計された外観は視認性も高く、エントランスアプローチにもゆとりがあります。
ガラスウォールを基調としたファサードは、採光性と透明感を感じさせ、都会的な働き方を後押しします。

基準階約138坪のオフィスフロアは、窓面の広さを活かしながら、明るく開放的なスペースが広がっています。
トイレ・パントリーの水回り設備はすべて専有部内に収められており、外部動線と執務空間が明確に分離されている点が特徴です。
これにより、室内の有効面積を最大化できるほか、来客時の案内や部門内導線の設計がしやすい点もメリットと言えます。
またOAフロア仕様で配線計画の自由度が高く、レイアウト変更やITインフラ導入にも柔軟に対応可能です。

渋谷という街のポテンシャルを活かしつつ、集中できるワークスペースを整えたい――そんなニーズに応えるのが「PMO渋谷2」です。
都市機能と快適設計がバランスした、働き方をアップグレードするオフィスとして、多くの企業にフィットする一棟です。

他のおすすめ物件を見る

OTHER

「CIRCLES日本橋浜町」は2024年7月竣工の三菱地所ブランドによる新築オフィスビル。
都営新宿線・浜町駅から徒歩2分という好アクセスのポジションにあり、「人形町」「馬喰横山」「東日本橋」といった複数駅も徒歩圏内です。
外観はガラスを基調にしたモダンなデザインで、街並みの中でも存在感がありつつ街に溶け込むスタイリッシュさ。周辺には飲食・カフェ・ショッピングスポットも充実しており、働く毎日を後押しします。

2026.01.08 中央区

御成門駅出口すぐ、御成門交差点角地に立つ菱進御成門ビル。2015年竣工の外観はガラスウォールと洗練されたマテリアルで構成されており、通りに映える存在感があります。
1階にコンビニを備え、日常的な利便性も確保。都営三田線「御成門駅」が徒歩1分、他にも「大門」「神谷町」「新橋」など複数駅が使えるアクセスの良さで、通勤・来客ともにストレスが少ない立地です。

2025.12.11 港区