スタッフが仲良くミーティングしている 泡 泡

STAFF BLOG

スタッフが仲良くミーティングしている
微笑みながら仕事をする女性 泡

飯田橋駅徒歩3分・神楽坂沿いの駅チカオフィス|《龍公亭ビル》

龍公亭ビルのメイン画像

「龍公亭ビル」は、飯田橋駅徒歩3分、神楽坂通り沿いに立地するオフィスビルです。人通りの多い通りに面しており、来訪者にも説明しやすいロケーションが特徴です。
1階部分は店舗区画となっており、視認性の高い外観構成。周辺には飲食店やカフェが多数点在し、打合せやランチ利用にも便利な環境が整っています。

この物件の関連画像を見る

OTHER PHOTO
龍公亭ビルのエントランス エントランス
龍公亭ビルのエントランス エントランス
龍公亭ビルのホール ホール
龍公亭ビルのエレベーター エレベーター

この物件の間取り情報を見る

FLOOR MAP

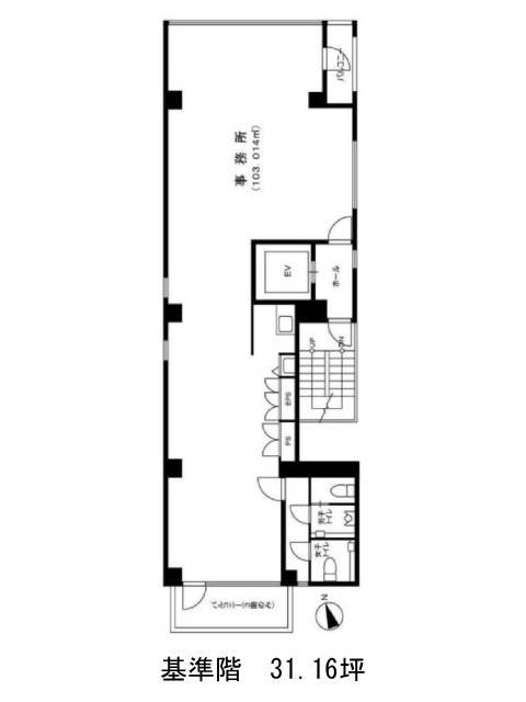
基準階は31.16坪。L字型に近い変形レイアウトで、一般的な整形区画に比べるとゾーニングには工夫が必要な形状です。
その一方で、奥まった部分を活かし会議室やバックオフィス機能を配置するなど、用途を明確に分けたレイアウトが検討しやすい構成といえます。
水回り(男女別トイレ・給湯室)は室内奥側にまとまっています。

建物情報の詳細を確認する

INFORMATION

名称龍公亭ビル

住所東京都新宿区神楽坂3-5

竣工2008年3月

規模地上7階/地下1階

構造S造

交通JR各線・東京メトロ各線・都営大江戸線「飯田橋駅」徒歩3分

設備等エレベーター1台・OAフロア・個別空調・男女別トイレ・機械警備

歴史と文化が息づく神楽坂立地のコンパクトオフィス

「龍公亭ビル」は、飯田橋駅徒歩3分に位置するオフィスビルです。複数路線が利用可能な立地に加え、神楽坂通りに面した案内のしやすさがある一方で、街全体が持つ落ち着きや上品さが来訪者に穏やかな印象を与えます。
周辺には老舗飲食店や隠れ家的なレストランが点在し、会食や打合せの場としても選択肢が豊富です。日常のランチ環境が充実しているだけでなく、企業としての“格”を自然に演出できる点も、このエリアならではの魅力です。

基準階31.16坪のコンパクトなワンフロアで、L字型に近い特徴的な形状。画一的ではないため、個性的な空間デザインが可能です。
奥まった部分を活かし入口側に会議室や応接室を設け、奥を執務エリアとするなど、用途を明確に分けたレイアウトが検討しやすい構成といえます。
水回り(男女別トイレ・給湯室)を室内奥側にまとめた設計のため、来客動線を分けやすい点も実務上のメリットです。

立地そのものが企業の価値を静かに引き上げる、そんな神楽坂というブランド性を活かし、士業やコンサルティング企業、デザイン・クリエイティブ関連など、対外的な印象を大切にする業種におすすめ物件です。

他のおすすめ物件を見る

OTHER

「CIRCLES日本橋浜町」は2024年7月竣工の三菱地所ブランドによる新築オフィスビル。
都営新宿線・浜町駅から徒歩2分という好アクセスのポジションにあり、「人形町」「馬喰横山」「東日本橋」といった複数駅も徒歩圏内です。
外観はガラスを基調にしたモダンなデザインで、街並みの中でも存在感がありつつ街に溶け込むスタイリッシュさ。周辺には飲食・カフェ・ショッピングスポットも充実しており、働く毎日を後押しします。

2026.01.08 中央区

御成門駅出口すぐ、御成門交差点角地に立つ菱進御成門ビル。2015年竣工の外観はガラスウォールと洗練されたマテリアルで構成されており、通りに映える存在感があります。
1階にコンビニを備え、日常的な利便性も確保。都営三田線「御成門駅」が徒歩1分、他にも「大門」「神谷町」「新橋」など複数駅が使えるアクセスの良さで、通勤・来客ともにストレスが少ない立地です。

2025.12.11 港区