ACN芝プラザビルの貸事務所・賃貸オフィス情報
ACN芝プラザビルの貸事務所・賃貸オフィス情報
ACN芝プラザビル
- エレベーター
- 個別空調
- 駐車場
- 新耐震基準
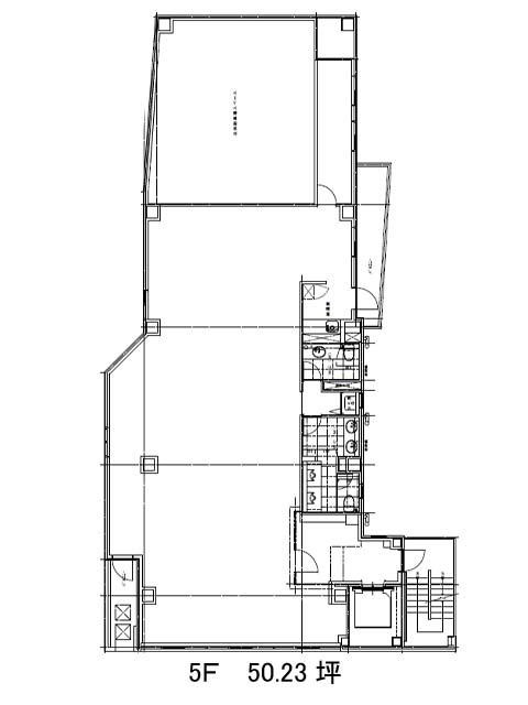
ACN芝プラザビルの空室フロアリスト
| 階数 | 面積 | 賃料+共益費 | 保証金 | 入居時期 | 更新料 | 償却費 | 礼金 | 検討 | 平面図 | 詳細 |
|---|---|---|---|---|---|---|---|---|---|---|
| 4 | 50.23坪 |
応相談応相談
|
応相談
|
即 | 新1ケ月 | 1ケ月 | なし | |||
| 5 | 50.23坪 |
応相談応相談
|
応相談
|
2026年5月上旬 | 新1ケ月 | 1ケ月 | なし | |||
| 10 | 67.38坪 |
応相談応相談
|
応相談
|
即 | 新1ケ月 | 1ケ月 | なし |
ACN芝プラザビルの物件情報
ACN芝プラザビル(港区芝)は三田駅徒歩3分、田町駅徒歩7分、芝公園駅徒歩8分の賃貸オフィスです。
ACN芝プラザビルのアクセス
ACN芝プラザビルの募集終了区画
| 階数 | 面積 | 賃料+共益費 | 保証金 | 入居時期 | 更新料 | 償却費 | 礼金 | 平面図 | 詳細 |
|---|---|---|---|---|---|---|---|---|---|
| 1 | 35.13坪 | − | − | 募集終了 | − | − | − | ||
| 3 | 50.23坪 | − | − | 募集終了 | − | − | − | ||
| 6 | 52.00坪 | − | − | 募集終了 | − | − | − | ||
| 6 | 50.23坪 | − | − | 募集終了 | − | − | − | ||
| 7 | 67.38坪 | − | − | 募集終了 | − | − | − | ||
| 7 | 65.58坪 | − | − | 募集終了 | − | − | − | ||
| 8 | 63.76坪 | − | − | 募集終了 | − | − | − | ||
| 9 | 67.38坪 | − | − | 募集終了 | − | − | − |


