オフィスニューガイア浜松町No.17の貸事務所・賃貸オフィス情報
オフィスニューガイア浜松町No.17の貸事務所・賃貸オフィス情報
オフィスニューガイア浜松町No.17
- エレベーター
- 個別空調
- 新耐震基準
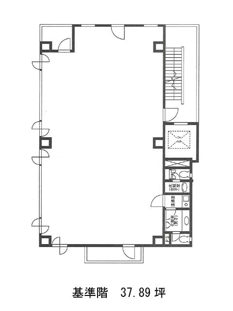
オフィスニューガイア浜松町No.17の空室フロアリスト
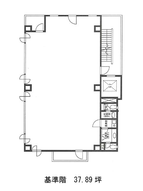
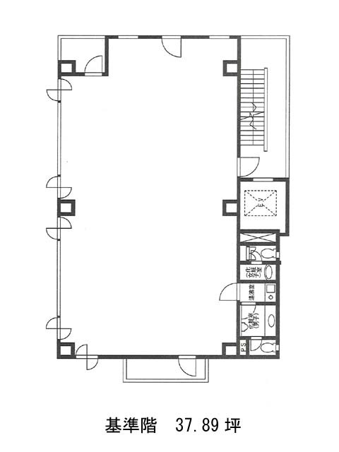
| 階数 | 面積 | 賃料+共益費 | 保証金 | 入居時期 | 更新料 | 償却費 | 礼金 | 検討 | 平面図 | 詳細 |
|---|---|---|---|---|---|---|---|---|---|---|
| 9 | 37.89坪 |
500,023円13,196円/坪
|
272万円
|
2026年4月 | 新1ケ月 | 1ケ月 | なし | |||
| 11 | 37.89坪 |
990,000円26,128円/坪
|
90万円
|
即 | 新1ケ月 | 1ケ月 | なし |
オフィスニューガイア浜松町No.17の物件情報
オフィスニューガイア浜松町No.17(港区芝)は三田駅徒歩7分、芝公園駅徒歩9分、日の出駅徒歩9分の賃貸オフィスです。
オフィスニューガイア浜松町No.17のアクセス
オフィスニューガイア浜松町No.17の条件に近い物件
オフィスニューガイア浜松町No.17の募集終了区画
| 階数 | 面積 | 賃料+共益費 | 保証金 | 入居時期 | 更新料 | 償却費 | 礼金 | 平面図 | 詳細 |
|---|---|---|---|---|---|---|---|---|---|
| 3 | 37.89坪 | − | − | 募集終了 | − | − | − | ||
| 4 | 37.89坪 | − | − | 募集終了 | − | − | − | ||
| 5 | 37.89坪 | − | − | 募集終了 | − | − | − | ||
| 6 | 37.89坪 | − | − | 募集終了 | − | − | − | ||
| 7 | 37.89坪 | − | − | 募集終了 | − | − | − | ||
| 8 | 37.89坪 | − | − | 募集終了 | − | − | − | ||
| 10 | 37.89坪 | − | − | 募集終了 | − | − | − |


