シバ・パークビルの貸事務所・賃貸オフィス情報
シバ・パークビルの貸事務所・賃貸オフィス情報
シバ・パークビル
- 物件番号
- 129-00126
- 所在地
- 東京都港区芝大門1-10-5
- 竣工
- 1974年12月
- 規模
- 地上6階
- エレベーター
- 個別空調
- 旧耐震基準
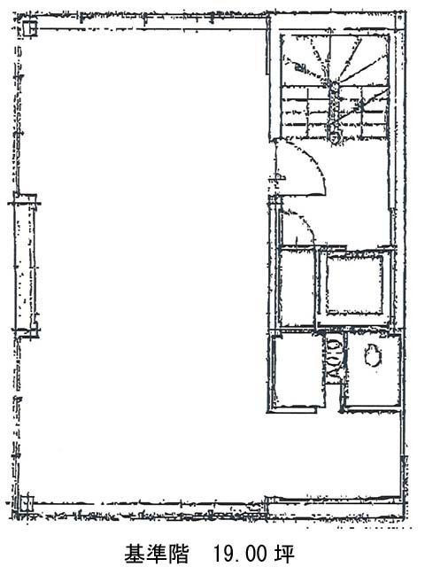
シバ・パークビルの空室フロアリスト
| 階数 | 面積 | 賃料+共益費 | 保証金 | 入居時期 | 更新料 | 償却費 | 礼金 | 検討 | 平面図 | 詳細 |
|---|---|---|---|---|---|---|---|---|---|---|
| 3 | 19.00坪 |
271,700円14,300円/坪
|
148万円
|
即 | 新1ケ月 | 2ケ月 | なし |
シバ・パークビルの物件情報
シバ・パークビル(港区芝大門)は御成門駅徒歩4分、大門駅徒歩4分、浜松町駅徒歩8分の賃貸オフィスです。
シバ・パークビルのアクセス
シバ・パークビルの条件に近い物件
シバ・パークビルの募集終了区画
| 階数 | 面積 | 賃料+共益費 | 保証金 | 入居時期 | 更新料 | 償却費 | 礼金 | 平面図 | 詳細 |
|---|---|---|---|---|---|---|---|---|---|
| 4 | 19.00坪 | − | − | 募集終了 | − | − | − | ||
| 5 | 19.00坪 | − | − | 募集終了 | − | − | − | ||
| 6 | 19.00坪 | − | − | 募集終了 | − | − | − |


