小松ビルの貸事務所・賃貸オフィス情報
小松ビルの貸事務所・賃貸オフィス情報
小松ビル
- エレベーター
- 新耐震基準
小松ビルの空室フロアリスト
| 階数 | 面積 | 賃料+共益費 | 保証金 | 入居時期 | 更新料 | 償却費 | 礼金 | 検討 | 平面図 | 詳細 |
|---|---|---|---|---|---|---|---|---|---|---|
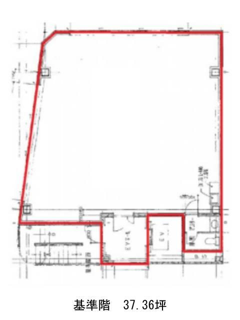
| 3 | 37.36坪 |
616,440円16,500円/坪
|
336万円
|
相談 | 新1ケ月 | なし | なし |
小松ビルの物件情報
小松ビル(港区芝大門)は大門駅徒歩3分、御成門駅徒歩5分、浜松町駅徒歩7分の賃貸オフィスです。
小松ビルのアクセス
小松ビルの条件に近い物件
小松ビルの募集終了区画
| 階数 | 面積 | 賃料+共益費 | 保証金 | 入居時期 | 更新料 | 償却費 | 礼金 | 平面図 | 詳細 |
|---|---|---|---|---|---|---|---|---|---|
| 1 | 27.30坪 | − | − | 募集終了 | − | − | − | ||
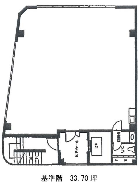
| 2 | 33.70坪 | − | − | 募集終了 | − | − | − |


