富士ビルの貸事務所・賃貸オフィス情報
富士ビルの貸事務所・賃貸オフィス情報
富士ビル
- エレベーター
- 個別空調
- 駐車場
- 耐震補強済み
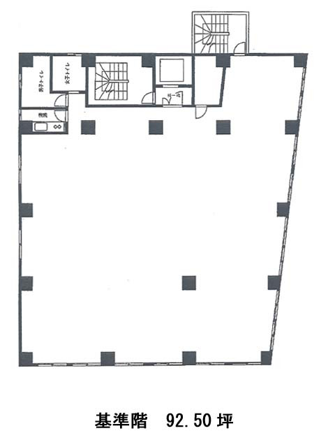
富士ビルの空室フロアリスト
| 階数 | 面積 | 賃料+共益費 | 保証金 | 入居時期 | 更新料 | 償却費 | 礼金 | 検討 | 平面図 | 詳細 |
|---|---|---|---|---|---|---|---|---|---|---|
| 2 | 92.50坪 |
1,526,250円16,500円/坪
|
869万円
|
即 | なし | 1ケ月 | なし |
富士ビルの物件情報
富士ビル(港区芝大門)は大門駅徒歩4分、芝公園駅徒歩5分、浜松町駅徒歩5分の賃貸オフィスです。
富士ビルのアクセス
富士ビルの条件に近い物件
富士ビルの募集終了区画
| 階数 | 面積 | 賃料+共益費 | 保証金 | 入居時期 | 更新料 | 償却費 | 礼金 | 平面図 | 詳細 |
|---|---|---|---|---|---|---|---|---|---|
| 3 | 92.50坪 | − | − | 募集終了 | − | − | − | ||
| 4 | 92.50坪 | − | − | 募集終了 | − | − | − | ||
| 5 | 92.50坪 | − | − | 募集終了 | − | − | − | ||
| 6 | 58.10坪 | − | − | 募集終了 | − | − | − | ||
| 7 | 58.10坪 | − | − | 募集終了 | − | − | − |


