KD南青山ビルの貸事務所・賃貸オフィス情報
KD南青山ビルの貸事務所・賃貸オフィス情報
KD南青山ビル
- 物件番号
- 137-00090
- 所在地
- 東京都港区南青山3-1-31
- 竣工
- 1995年1月
- 規模
- 地上11階/地下2階
- エレベーター
- セントラル
- 駐車場
- 新耐震基準
KD南青山ビルの空室フロアリスト
| 階数 | 面積 | 賃料+共益費 | 保証金 | 入居時期 | 更新料 | 償却費 | 礼金 | 検討 | 平面図 | 詳細 |
|---|---|---|---|---|---|---|---|---|---|---|
| 8 | 91.69坪 |
応相談応相談
|
応相談
|
2026年4月上旬 | なし | なし | なし |
KD南青山ビルの物件情報
KD南青山ビル(港区南青山)は外苑前駅徒歩5分、表参道駅徒歩7分、青山一丁目駅徒歩13分の賃貸オフィスです。
KD南青山ビルのアクセス
KD南青山ビルの募集終了区画
| 階数 | 面積 | 賃料+共益費 | 保証金 | 入居時期 | 更新料 | 償却費 | 礼金 | 平面図 | 詳細 |
|---|---|---|---|---|---|---|---|---|---|
| 1 | 290.24坪 | − | − | 募集終了 | − | − | − | ||
| 2 | 117.78坪 | − | − | 募集終了 | − | − | − | ||
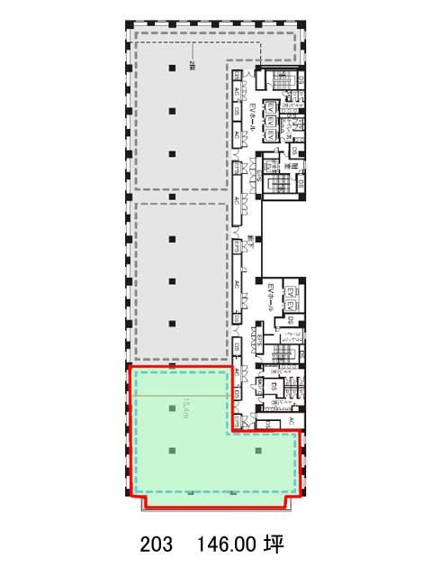
| 2 | 146.00坪 | − | − | 募集終了 | − | − | − | ||
| 2 | 126.82坪 | − | − | 募集終了 | − | − | − | ||
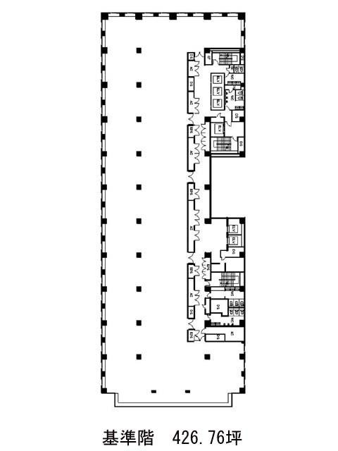
| 3 | 426.76坪 | − | − | 募集終了 | − | − | − | ||
| 4 | 280.75坪 | − | − | 募集終了 | − | − | − | ||
| 4 | 426.76坪 | − | − | 募集終了 | − | − | − | ||
| 4 | 126.82坪 | − | − | 募集終了 | − | − | − | ||
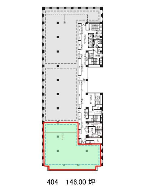
| 4 | 146.00坪 | − | − | 募集終了 | − | − | − | ||
| 5 | 217.34坪 | − | − | 募集終了 | − | − | − | ||
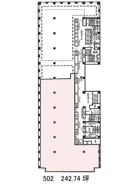
| 5 | 242.74坪 | − | − | 募集終了 | − | − | − | ||
| 6 | 156.63坪 | − | − | 募集終了 | − | − | − | ||
| 6 | 156.39坪 | − | − | 募集終了 | − | − | − | ||
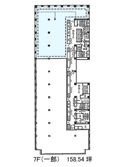
| 7 | 158.54坪 | − | − | 募集終了 | − | − | − | ||
| 8 | 93.90坪 | − | − | 募集終了 | − | − | − | ||
| 8 | 64.64坪 | − | − | 募集終了 | − | − | − | ||
| 9 | 93.90坪 | − | − | 募集終了 | − | − | − | ||
| 9 | 64.64坪 | − | − | 募集終了 | − | − | − | ||
| 10 | 158.54坪 | − | − | 募集終了 | − | − | − | ||
| 11 | 158.37坪 | − | − | 募集終了 | − | − | − |


