白金台ビルの貸事務所・賃貸オフィス情報
白金台ビルの貸事務所・賃貸オフィス情報
白金台ビル
- エレベーター
- 個別空調
- 駐車場
- 新耐震基準
白金台ビルの空室フロアリスト
| 階数 | 面積 | 賃料+共益費 | 保証金 | 入居時期 | 更新料 | 償却費 | 礼金 | 検討 | 平面図 | 詳細 |
|---|---|---|---|---|---|---|---|---|---|---|
| 4 | 111.62坪 |
応相談応相談
|
応相談
|
即 | なし | なし | なし | |||
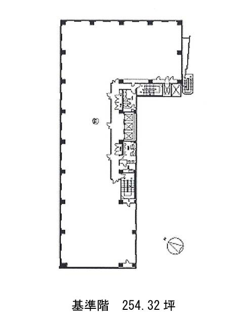
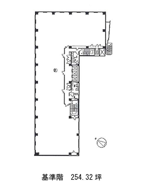
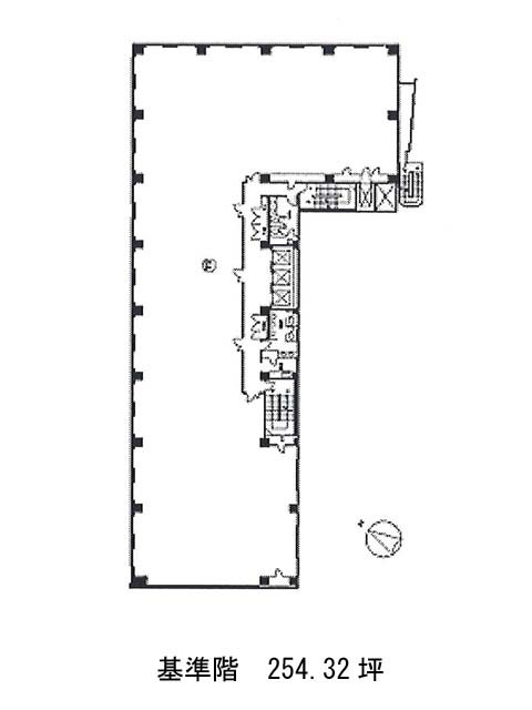
| 5 | 254.32坪 |
応相談応相談
|
応相談
|
相談 | なし | なし | なし | |||
| 6 | 203.09坪 |
応相談応相談
|
応相談
|
2026年9月上旬 | なし | なし | なし |
白金台ビルの物件情報
白金台ビル(港区白金台)は白金台駅徒歩2分、白金高輪駅徒歩11分、高輪台駅徒歩13分の賃貸オフィスです。
白金台ビルのアクセス
白金台ビルの条件に近い物件
白金台ビルの募集終了区画
| 階数 | 面積 | 賃料+共益費 | 保証金 | 入居時期 | 更新料 | 償却費 | 礼金 | 平面図 | 詳細 |
|---|---|---|---|---|---|---|---|---|---|
| 1 | 109.41坪 | − | − | 募集終了 | − | − | − | ||
| 2 | 241.70坪 | − | − | 募集終了 | − | − | − | ||
| 3 | 254.32坪 | − | − | 募集終了 | − | − | − | ||
| 4 | 254.32坪 | − | − | 募集終了 | − | − | − | ||
| 4 | 142.70坪 | − | − | 募集終了 | − | − | − | ||
| 5 | 203.17坪 | − | − | 募集終了 | − | − | − | ||
| 6 | 254.32坪 | − | − | 募集終了 | − | − | − | ||
| 7 | 203.17坪 | − | − | 募集終了 | − | − | − | ||
| 8 | 131.85坪 | − | − | 募集終了 | − | − | − |


