0120-16-2331

【受付時間】平日 AM9:00〜PM7:00

メールでお問合せ
現在、空室がございません。

渋谷橋本ビルの貸事務所・賃貸オフィス情報

渋谷橋本ビルの貸事務所・賃貸オフィス情報

渋谷橋本ビル

物件番号
156​-​00006
所在地
東京都渋谷区円山町5-5
最寄駅
神泉駅 3分
渋谷駅 5分
竣工
1984年3月
規模
地上9階/地下1階
  • エレベーター
  • 個別空調
  • 新耐震基準

渋谷橋本ビルの空室フロアリスト

現在、空室がございません。

渋谷橋本ビルの物件情報

渋谷橋本ビル(渋谷区円山町)は神泉駅徒歩3分、渋谷駅徒歩5分の賃貸オフィスです。

渋谷橋本ビルのアクセス

渋谷橋本ビルの募集終了区画

階数 面積 賃料+共益費 保証金 入居時期 更新料 償却費 礼金 平面図 詳細
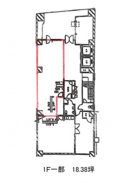
1 18.38坪 募集終了
2 66.16坪 募集終了
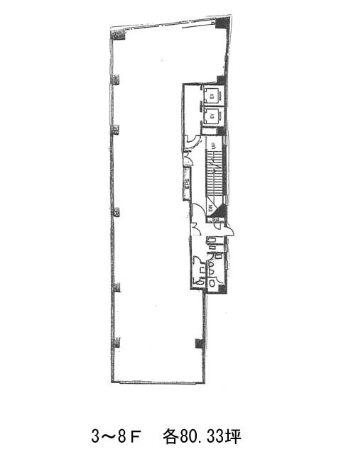
3 80.33坪 募集終了
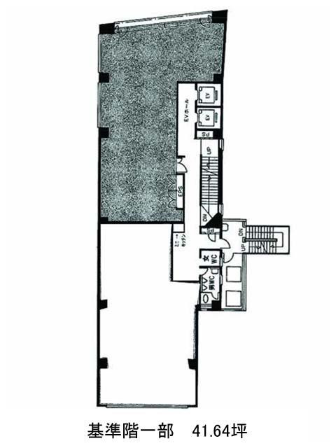
4 41.64坪 募集終了
4 41.64坪 募集終了
5 80.33坪 募集終了
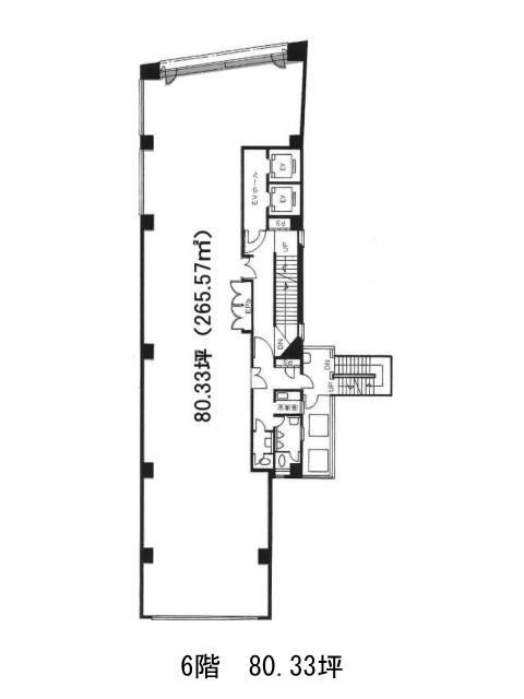
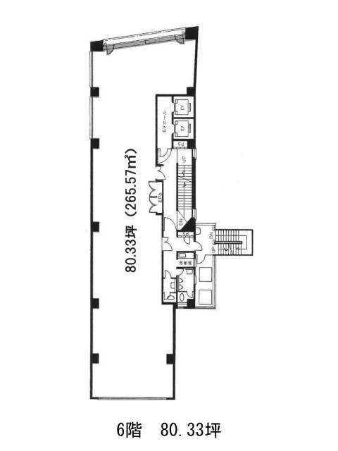
6 80.33坪 募集終了
6 80.33坪 募集終了
7 80.33坪 募集終了
8 80.33坪 募集終了
9 41.64坪 募集終了

貸事務所・賃貸オフィスを最寄駅から探す

貸事務所・賃貸オフィスを最寄駅の沿線から探す

お問合せ このビルについて問い合わせる