Sreed EBISU EAST の貸事務所・賃貸オフィス情報
Sreed EBISU EAST の貸事務所・賃貸オフィス情報
Sreed EBISU EAST
- エレベーター
- 個別空調
- 新耐震基準
Sreed EBISU EAST の空室フロアリスト
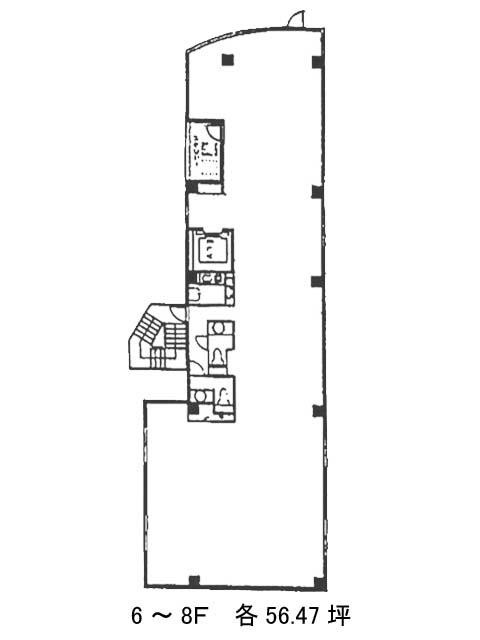
| 階数 | 面積 | 賃料+共益費 | 保証金 | 入居時期 | 更新料 | 償却費 | 礼金 | 検討 | 平面図 | 詳細 |
|---|---|---|---|---|---|---|---|---|---|---|
| 7 | 56.47坪 |
1,863,510円33,000円/坪
|
1219万円
|
2026年7月上旬 | 新1ケ月 | なし | なし | |||
| 8 | 56.47坪 |
1,863,510円33,000円/坪
|
1219万円
|
2026年7月上旬 | 新1ケ月 | なし | なし |
Sreed EBISU EAST の物件情報
Sreed EBISU EAST (渋谷区恵比寿)は恵比寿駅徒歩7分、広尾駅徒歩13分の賃貸オフィスです。
Sreed EBISU EAST のアクセス
Sreed EBISU EAST の条件に近い物件
Sreed EBISU EAST の募集終了区画
| 階数 | 面積 | 賃料+共益費 | 保証金 | 入居時期 | 更新料 | 償却費 | 礼金 | 平面図 | 詳細 |
|---|---|---|---|---|---|---|---|---|---|
| 2 | 29.45坪 | − | − | 募集終了 | − | − | − | ||
| 3 | 33.99坪 | − | − | 募集終了 | − | − | − | ||
| 4 | 33.99坪 | − | − | 募集終了 | − | − | − | ||
| 5 | 36.00坪 | − | − | 募集終了 | − | − | − | ||
| 6 | 56.47坪 | − | − | 募集終了 | − | − | − | ||
| 8 | 38.23坪 | − | − | 募集終了 | − | − | − | ||
| 8 | 38.23坪 | − | − | 募集終了 | − | − | − | ||
| 9 | 38.23坪 | − | − | 募集終了 | − | − | − |


