青山ファーストビル(青山東急ビル)の貸事務所・賃貸オフィス情報
青山ファーストビル(青山東急ビル)の貸事務所・賃貸オフィス情報
青山ファーストビル(青山東急ビル)
- エレベーター
- 個別空調
- 駐車場
- 新耐震基準
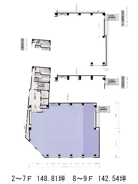
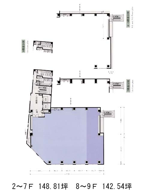
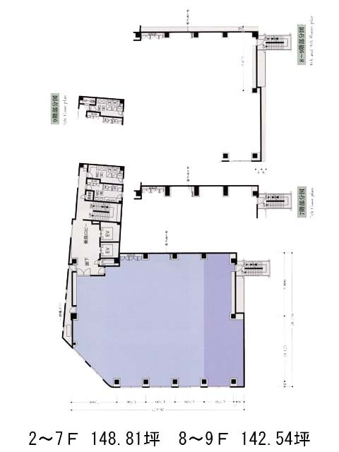
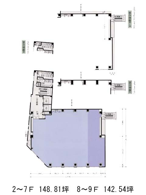
青山ファーストビル(青山東急ビル)の空室フロアリスト
| 階数 | 面積 | 賃料+共益費 | 保証金 | 入居時期 | 更新料 | 償却費 | 礼金 | 検討 | 平面図 | 詳細 |
|---|---|---|---|---|---|---|---|---|---|---|
| 6 | 148.82坪 |
応相談応相談
|
応相談
|
2026年4月上旬 | なし | なし | なし |
青山ファーストビル(青山東急ビル)の物件情報
青山ファーストビル(青山東急ビル)(渋谷区渋谷)は表参道駅徒歩5分、渋谷駅徒歩9分、明治神宮前駅徒歩14分の賃貸オフィスです。
青山ファーストビル(青山東急ビル)のアクセス
青山ファーストビル(青山東急ビル)の募集終了区画
| 階数 | 面積 | 賃料+共益費 | 保証金 | 入居時期 | 更新料 | 償却費 | 礼金 | 平面図 | 詳細 |
|---|---|---|---|---|---|---|---|---|---|
| 1 | 90.03坪 | − | − | 募集終了 | − | − | − | ||
| 2 | 148.82坪 | − | − | 募集終了 | − | − | − | ||
| 3 | 148.81坪 | − | − | 募集終了 | − | − | − | ||
| 4 | 148.82坪 | − | − | 募集終了 | − | − | − | ||
| 5 | 148.82坪 | − | − | 募集終了 | − | − | − | ||
| 7 | 148.81坪 | − | − | 募集終了 | − | − | − | ||
| 8 | 148.81坪 | − | − | 募集終了 | − | − | − | ||
| 9 | 148.81坪 | − | − | 募集終了 | − | − | − |


