郁文堂青山通りビルの貸事務所・賃貸オフィス情報
郁文堂青山通りビルの貸事務所・賃貸オフィス情報
郁文堂青山通りビル
- エレベーター
- 個別空調
- 新耐震基準
郁文堂青山通りビルの空室フロアリスト
| 階数 | 面積 | 賃料+共益費 | 保証金 | 入居時期 | 更新料 | 償却費 | 礼金 | 検討 | 平面図 | 詳細 |
|---|---|---|---|---|---|---|---|---|---|---|
| 4 | 22.82坪 |
627,550円27,500円/坪
|
479万円
|
2026年6月上旬 | 新1ケ月 | 20% | なし |
郁文堂青山通りビルの物件情報
郁文堂青山通りビル(渋谷区渋谷)は表参道駅徒歩6分、渋谷駅徒歩8分、明治神宮前駅徒歩15分の賃貸オフィスです。
郁文堂青山通りビルのアクセス
郁文堂青山通りビルの条件に近い物件
郁文堂青山通りビルの募集終了区画
| 階数 | 面積 | 賃料+共益費 | 保証金 | 入居時期 | 更新料 | 償却費 | 礼金 | 平面図 | 詳細 |
|---|---|---|---|---|---|---|---|---|---|
| 1 | 25.76坪 | − | − | 募集終了 | − | − | − | ||
| 2 | 26.22坪 | − | − | 募集終了 | − | − | − | ||
| 3 | 20.71坪 | − | − | 募集終了 | − | − | − | ||
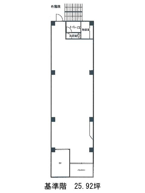
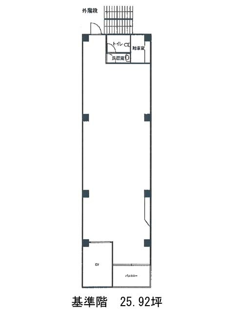
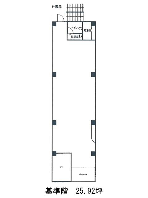
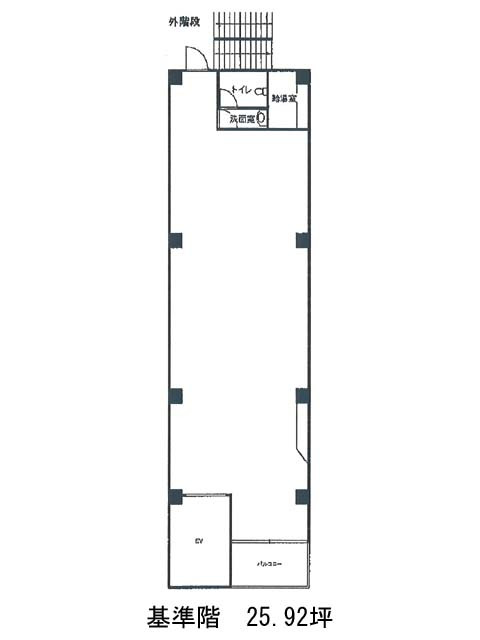
| 5 | 25.92坪 | − | − | 募集終了 | − | − | − | ||
| 6 | 25.92坪 | − | − | 募集終了 | − | − | − | ||
| 7 | 25.92坪 | − | − | 募集終了 | − | − | − | ||
| 8 | 25.92坪 | − | − | 募集終了 | − | − | − | ||
| 9 | 25.92坪 | − | − | 募集終了 | − | − | − |


