エスラ原宿ビルの貸事務所・賃貸オフィス情報
エスラ原宿ビルの貸事務所・賃貸オフィス情報
エスラ原宿ビル
- 物件番号
- 170-00054
- 所在地
- 東京都渋谷区神宮前3-25-14
- 竣工
- 1984年11月
- 規模
- 地上8階
- エレベーター
- 個別空調
- 新耐震基準
エスラ原宿ビルの空室フロアリスト
| 階数 | 面積 | 賃料+共益費 | 保証金 | 入居時期 | 更新料 | 償却費 | 礼金 | 検討 | 平面図 | 詳細 |
|---|---|---|---|---|---|---|---|---|---|---|
| 2 | 54.63坪 |
応相談応相談
|
応相談
|
2026年2月上旬 | 新1ケ月 | なし | 1ケ月 | |||
| 3 | 57.30坪 |
応相談応相談
|
応相談
|
即 | 新1ケ月 | なし | 1ケ月 | |||
| 4 | 57.30坪 |
応相談応相談
|
応相談
|
即 | 新1ケ月 | なし | 1ケ月 |
エスラ原宿ビルの物件情報
エスラ原宿ビル(渋谷区神宮前)は明治神宮前駅徒歩6分、原宿駅徒歩8分、北参道駅徒歩10分の賃貸オフィスです。
エスラ原宿ビルのアクセス
エスラ原宿ビルの募集終了区画
| 階数 | 面積 | 賃料+共益費 | 保証金 | 入居時期 | 更新料 | 償却費 | 礼金 | 平面図 | 詳細 |
|---|---|---|---|---|---|---|---|---|---|
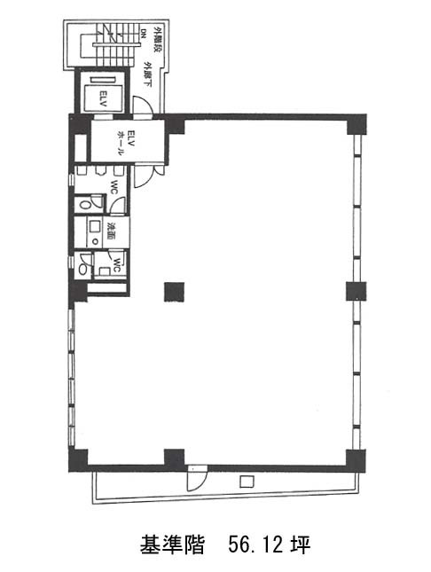
| 5 | 56.12坪 | − | − | 募集終了 | − | − | − | ||
| 6 | 56.12坪 | − | − | 募集終了 | − | − | − | ||
| 7 | 57.30坪 | − | − | 募集終了 | − | − | − | ||
| 8 | 56.13坪 | − | − | 募集終了 | − | − | − |


