クローチェ神宮前ビルの貸事務所・賃貸オフィス情報
クローチェ神宮前ビルの貸事務所・賃貸オフィス情報
クローチェ神宮前ビル
- 物件番号
- 170-00719
- 所在地
- 東京都渋谷区神宮前3-35-3
- 竣工
- 1968年7月
- 規模
- 地上8階/地下1階
- エレベーター
- 個別空調
- 耐震補強済み
クローチェ神宮前ビルの空室フロアリスト
| 階数 | 面積 | 賃料+共益費 | 保証金 | 入居時期 | 更新料 | 償却費 | 礼金 | 検討 | 平面図 | 詳細 |
|---|---|---|---|---|---|---|---|---|---|---|
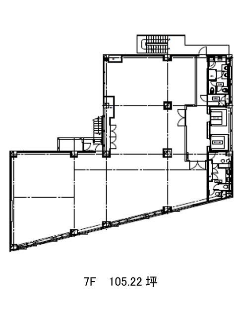
| 5 | 105.22坪 |
応相談応相談
|
応相談
|
2026年6月上旬 | 新1ケ月 | 2ケ月 | なし |
クローチェ神宮前ビルの物件情報
クローチェ神宮前ビル(渋谷区神宮前)は外苑前駅徒歩8分、表参道駅徒歩11分、国立競技場駅徒歩12分の賃貸オフィスです。
クローチェ神宮前ビルのアクセス
クローチェ神宮前ビルの募集終了区画
| 階数 | 面積 | 賃料+共益費 | 保証金 | 入居時期 | 更新料 | 償却費 | 礼金 | 平面図 | 詳細 |
|---|---|---|---|---|---|---|---|---|---|
| 1 | 52.03坪 | − | − | 募集終了 | − | − | − | ||
| 2 | 166.38坪 | − | − | 募集終了 | − | − | − | ||
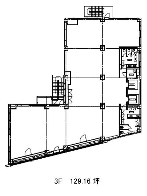
| 3 | 129.16坪 | − | − | 募集終了 | − | − | − | ||
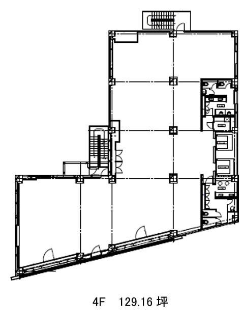
| 4 | 129.16坪 | − | − | 募集終了 | − | − | − | ||
| 6 | 105.22坪 | − | − | 募集終了 | − | − | − | ||
| 7 | 105.22坪 | − | − | 募集終了 | − | − | − |


