神宮前松井ビルの貸事務所・賃貸オフィス情報
神宮前松井ビルの貸事務所・賃貸オフィス情報
神宮前松井ビル
- エレベーター
- 個別空調
- 新耐震基準
神宮前松井ビルの空室フロアリスト
| 階数 | 面積 | 賃料+共益費 | 保証金 | 入居時期 | 更新料 | 償却費 | 礼金 | 検討 | 平面図 | 詳細 |
|---|---|---|---|---|---|---|---|---|---|---|
| B1-1F | 52.89坪 |
1,512,654円28,600円/坪
|
1322万円
|
即 | 新1ケ月 | 2ケ月 | 1ケ月 |
神宮前松井ビルの物件情報
神宮前松井ビル(渋谷区神宮前)は渋谷駅徒歩6分、明治神宮前駅徒歩7分、原宿駅徒歩11分の賃貸オフィスです。
神宮前松井ビルのアクセス
神宮前松井ビルの募集終了区画
| 階数 | 面積 | 賃料+共益費 | 保証金 | 入居時期 | 更新料 | 償却費 | 礼金 | 平面図 | 詳細 |
|---|---|---|---|---|---|---|---|---|---|
| 地下1 | 26.00坪 | − | − | 募集終了 | − | − | − | ||
| 3-4 | 38.43坪 | − | − | 募集終了 | − | − | − | ||
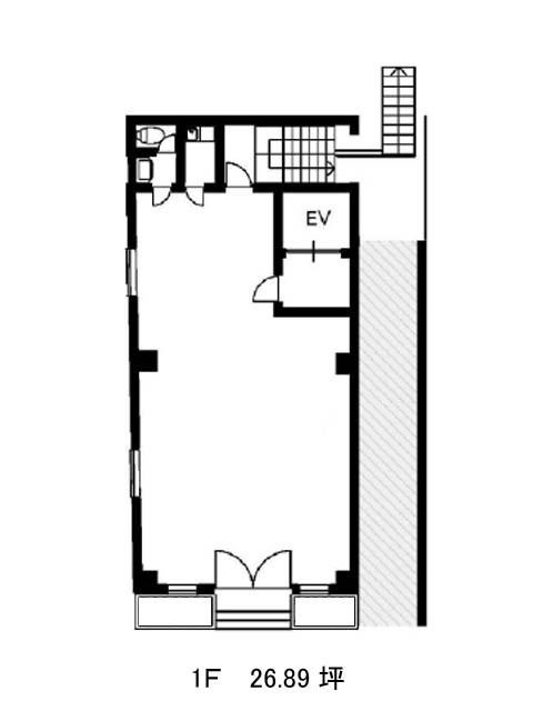
| 1 | 26.89坪 | − | − | 募集終了 | − | − | − | ||
| 2 | 28.40坪 | − | − | 募集終了 | − | − | − | ||
| 3 | 28.45坪 | − | − | 募集終了 | − | − | − |


